Zinshaus in Best Lage von Leoben

Investment zum Kauf
8700 Leoben

20251008_130234
20251008_130158
20251008_121812
20251008_121912
20251008_122359
20251008_122427
20251008_122319
Lageplan_Ansicht
Lageplan 3

Beschreibung

Dieses attraktive Zinshaus befindet sich in einer hervorragenden Lage in der Max-Tendler-Straße und bietet
eine einmalige Investitionsgelegenheit.
Das Gebäude besticht durch seine solide Bausubstanz, das charmante
historische Flair durch die besondere Neorenaissancefassadengestaltung und die ausgezeichnete Anbindung
an den öffentlichen Nahverkehr sowie alle wichtigen Infrastruktur-Einrichtungen der Stadt.

Mit einer großzügigen Wohnfläche und mehreren Wohn- sowie Geschäftseinheiten, die sich ideal für
langfristige Vermietung eignen, bietet das Objekt ein hohes Potenzial für nachhaltige Erträge. Die ruhige und
dennoch zentrumsnahe Lage macht das Zinshaus besonders für Mieter attraktiv, die sowohl den Komfort der
Stadt als auch die Nähe zu Natur und Freizeitmöglichkeiten schätzen.

Im Zuge einer umfassenden Sanierung im Rahmen des Wohnbauförderungsgesetzes 1993 wurden in den
Jahren 2008/2009 die Wohnungen vollständig saniert bzw. neu errichtet (einschließlich Dachbodenausbau).
Eine Wohnung ist renovierungsbedürftig.

Für die leerstehenden Büroflächen ist bereits die Anbringung eines
Balkons über die gesamte Südseite von ca. 15 m² vorgesehen bzw. mit der Behörde vorbesprochen.

Vom Gebäude aus sind der Hauptplatz Leoben und die Montanuniversität in nur wenigen Minuten erreichbar. Ebenso befinden sich diverse Geschäfte, medizinische Einrichtungen, eine Apotheke sowie Krankenhaus, Schulen und Kindergärten in unmittelbarer Nähe. Der Peter-Tunner-Park, der Gärnerpark und der Stadtpark laden zu Spaziergängen und Entspannung ein.

Öffentliche Verkehrsanbindung:
Autobus: 1, 2, 3, 4
Bahnhof Leoben: EC, IC und REX

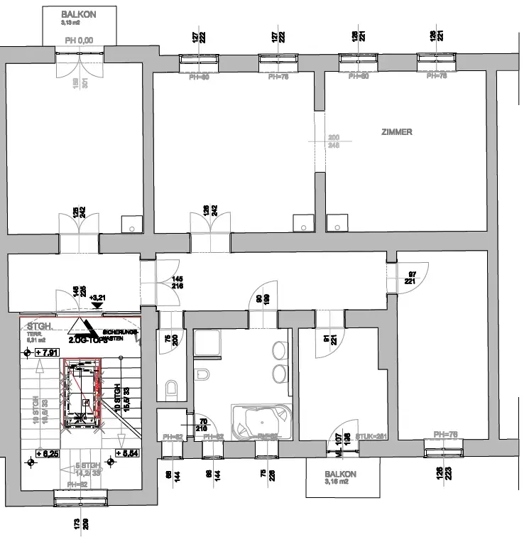
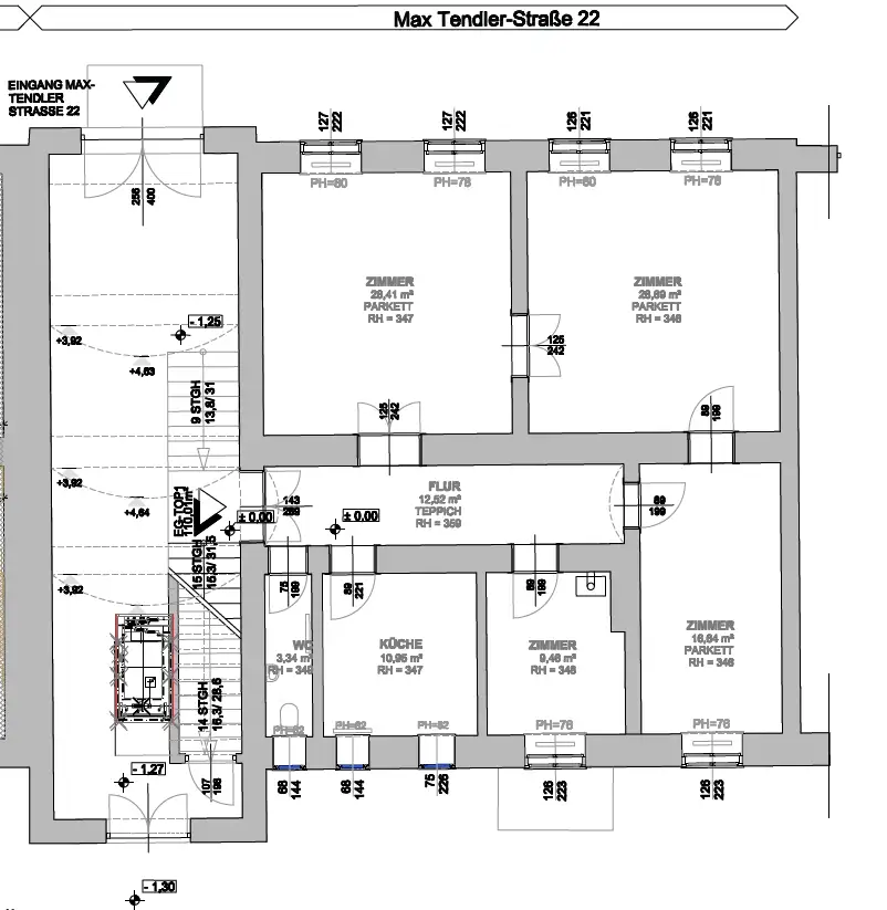
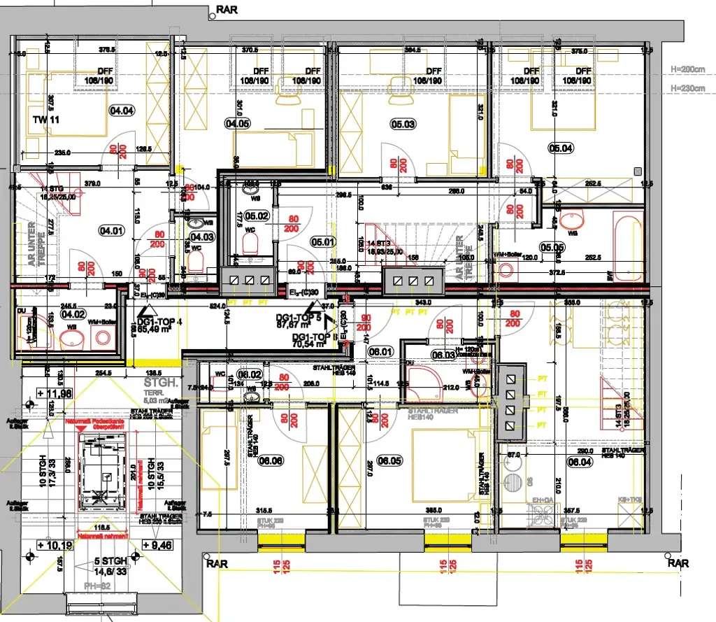
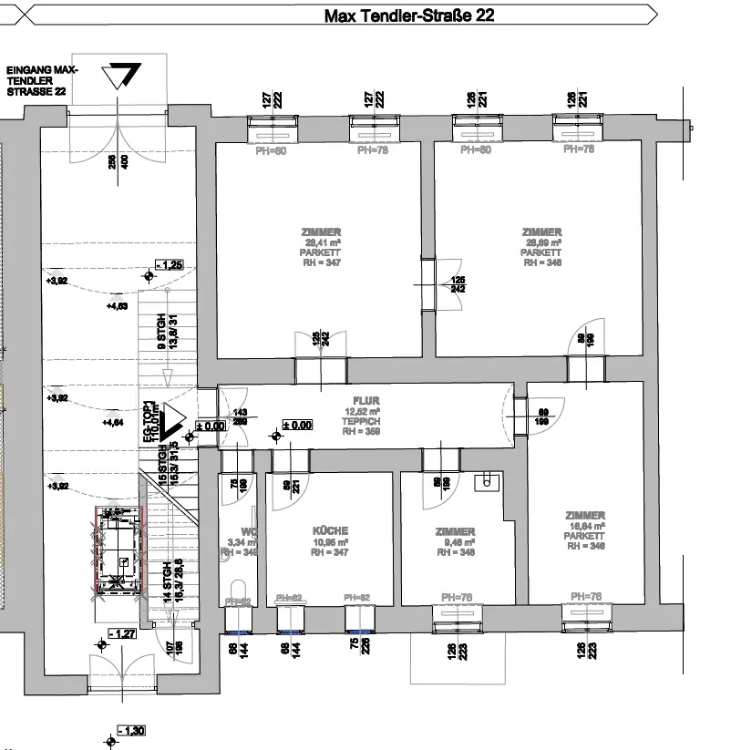
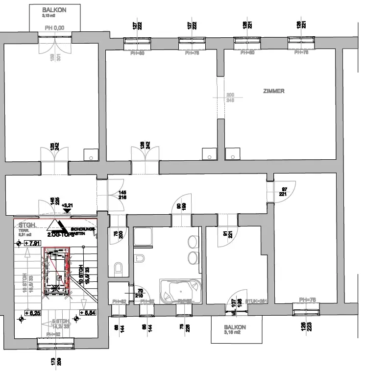
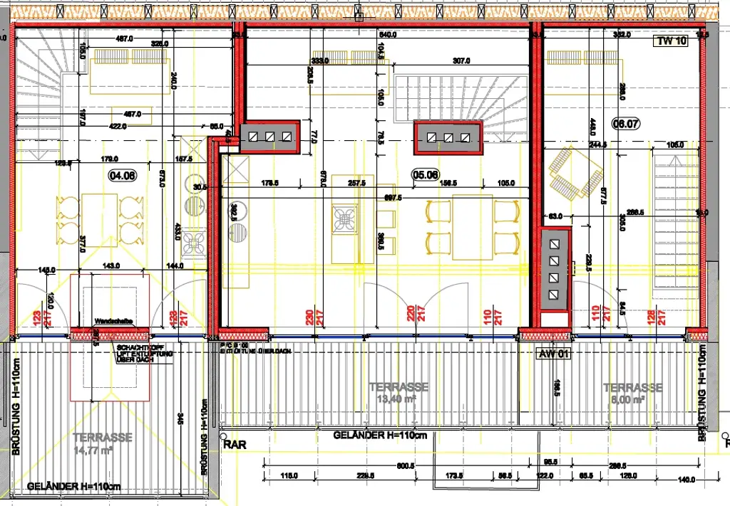
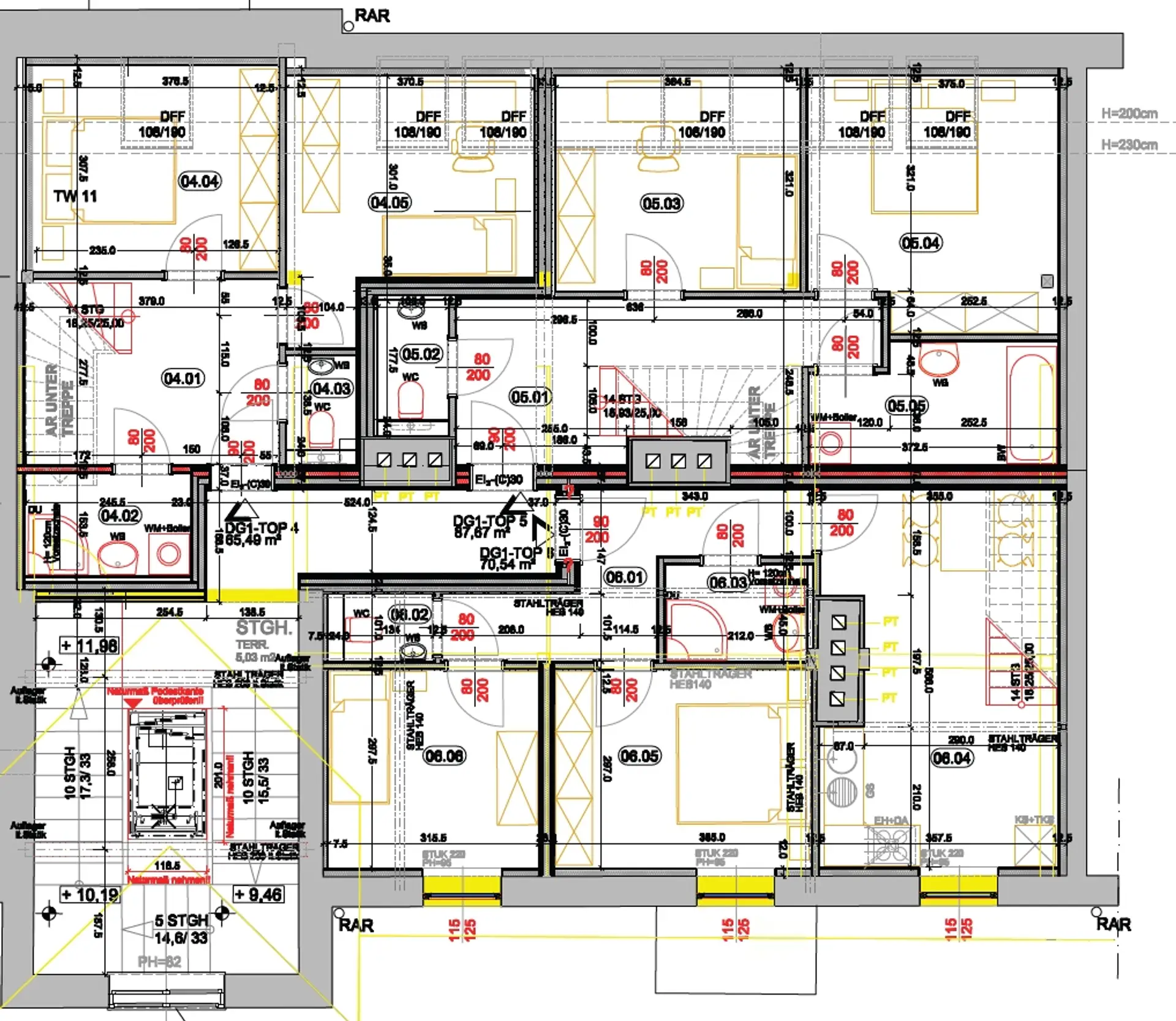
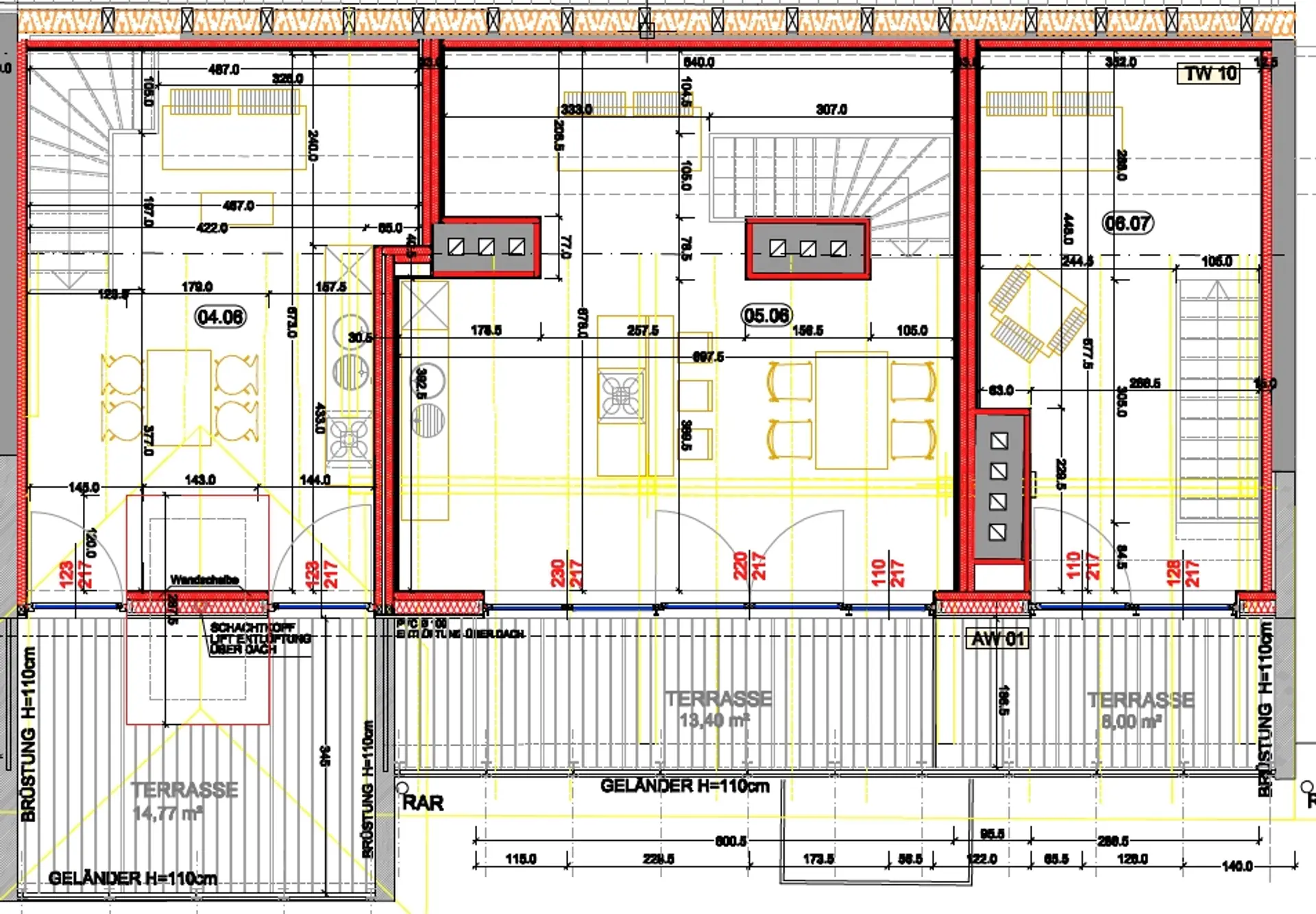
Grundrisse

Margit Pürrer

Ihr Ansprechpartner

Margit Pürrer

Immobilienmaklerin

Preisdetails

Kaufpreis:
1.530.000,00 €
Kaufpreis/m²
2.432,97 €
Provision:
3 %

Fakten

Objektnummer:
141/84815
Objekttyp:
Investment
Nutzfläche:
628,86 m²
Grundstücksfläche:
486 m²
Baujahr:
1993
Verfügbarkeit:
Verfügbar

Ausstattungen

Fahrstuhl