"Wohnhaus Karl 9" - Extravagante Eigentumswohnungen in Mödling

Projekt / Sonstige
2340 Mödling

C7
Rendering_c5_2
C4_1

Beschreibung

Leon Bau steht seit 2006 für höchsten Komfort, was sich auch in diesem Projekt erneut widerspiegelt. Das Neubauprojekt „Karl9“ steht für modernes Wohnen auf höchstem Niveau. Die Architektur mit klaren Linien und offen gestalteten Grundrissen schafft ein einzigartiges Wohngefühl. Große Fensterflächen sorgen für lichtdurchflutete Räume, während hochwertige Materialien ein stilvolles Ambiente garantieren. Besonderes Augenmerk wurde auf eine nachhaltige und energieeffiziente Bauweise gelegt. Die durchdachte Gestaltung der Fassade sowie die Auswahl hochwertiger Tür- und Fensterelemente tragen maßgeblich zur Reduzierung des Heizwärmebedarfs und zur Optimierung der Energieeffizienz des Gebäudes bei.

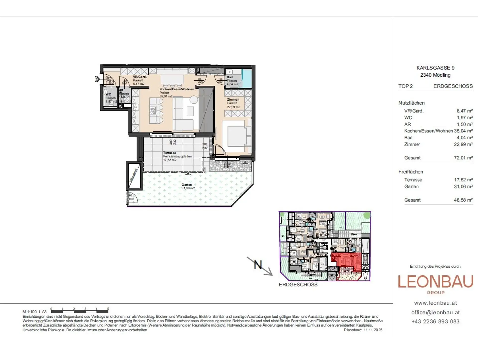
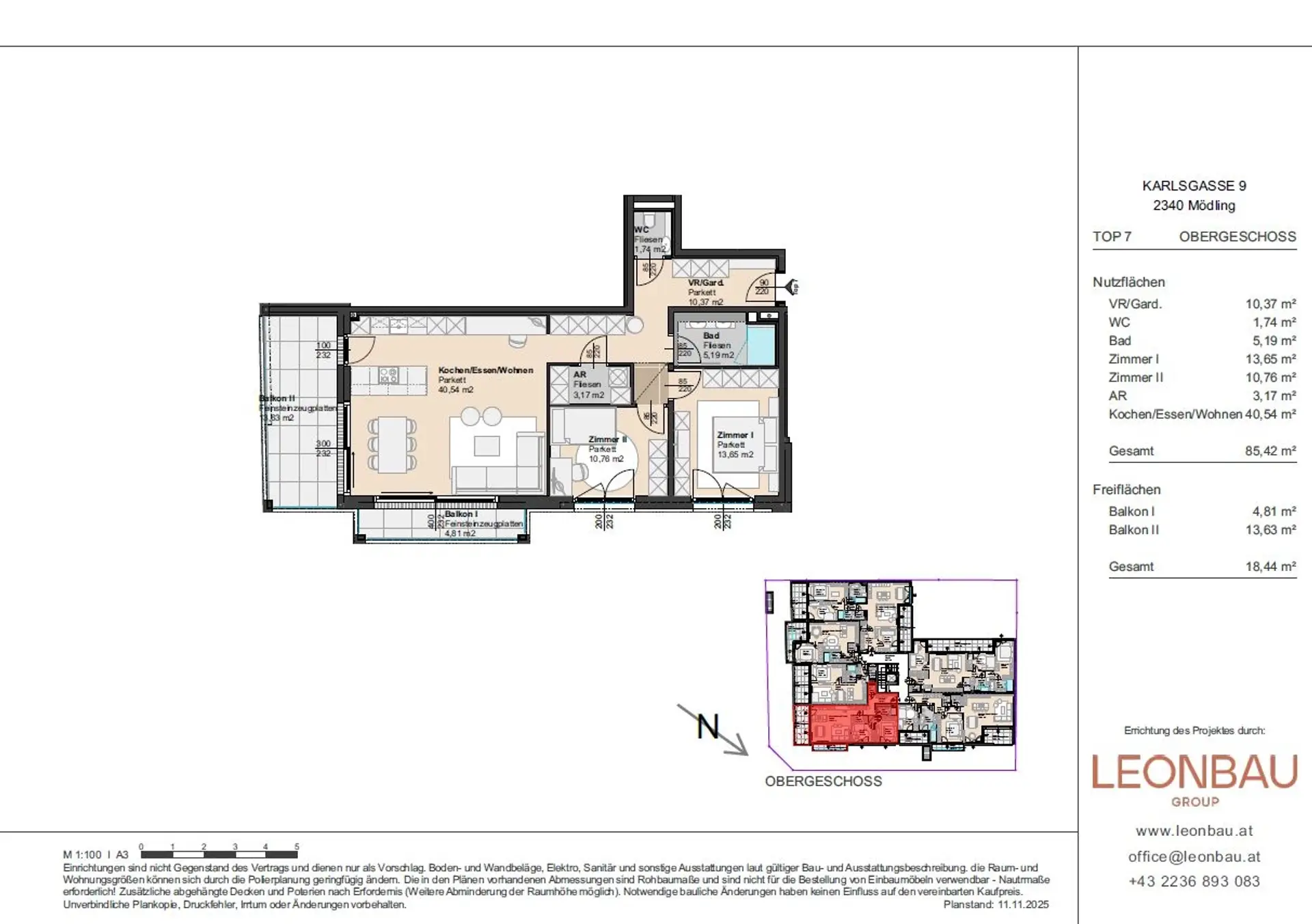
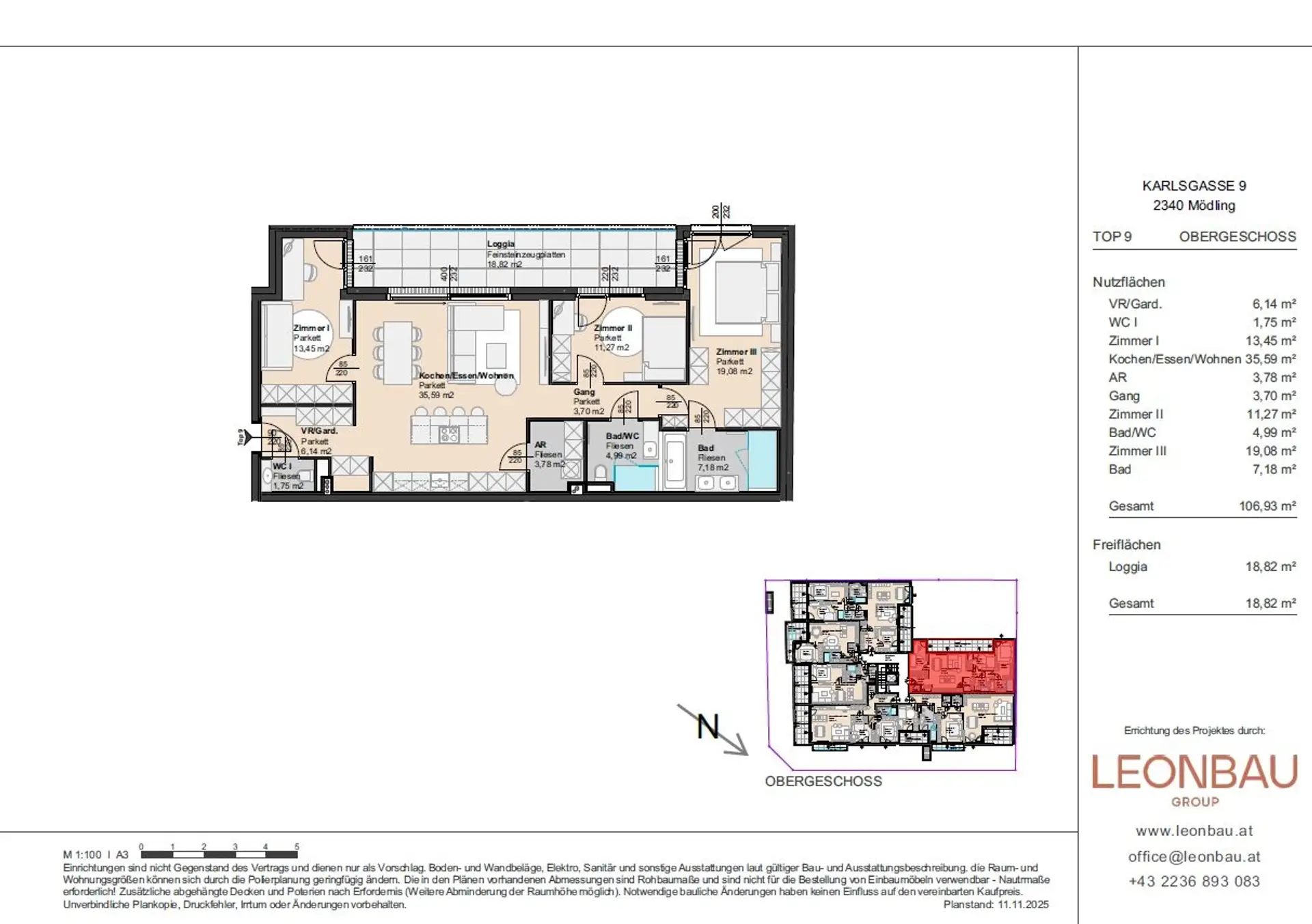
Insgesamt entstehen 17 exklusive Eigentumswohnungen auf 3 Geschossen mit Wohnflächen zwischen ca. 56 m² und ca. 123 m². Jede Einheit verfügt entweder über einen privaten Garten mit Terrasse, einen großzügigen Balkon und/oder eine Loggia, die zusätzlichen Wohnraum im Freien bietet. Selbstverständlich stehen in diesem exklusiven Objekt 29 Tiefgaragenplätze zur Verfügung.

Eckdaten:
Exklusive Außengestaltung
umweltfreundliche Fernwärme über Fußbodenheizung
Stellplatz in der Tiefgarage mit direktem Zugang zum Personenlift
Flexible Grundrisse, Raumanordnung nach Ihren Bedürfnissen möglich
Kunststoff/Alufenster in Dreh
- oder Kipp-Ausführung mit 3-Scheiben-Aufbau
Elektrische Raffstore für eine ideale Beschattung
Edle Parkettböden von Weizer-Parkett
Großformatfliesen in den Sanitärräumen
Feinsteinzeug Flie
sen Außenbereich
Sanitärausstattung der Marken Kronenbach, Grohe und Hoesch
Eigengarten mit großer Terrasse im Erdgeschoss
Großflächige Balkone/Loggien für die Wohnungen im 1. Obergeschoss und Dachgeschoss

Detailliertere Informationen entnehmen Sie bitte der Bau-Ausstattungsbeschreibung im Anhang.

Lage und Infrastruktur:
Wohnen im Speckgürtel südlich von Wien – für viele dank hervorragender Verkehrsanbindung und gleichzeitigem Kleinstadtflair ein optimaler Wohnort mit hoher Lebensqualität. Die nahegelegenen Supermärkte gestalten Besorgungen im Alltag sehr einfach und lassen Ihnen Zeit für andere Dinge. Auch Kindergärten, Volksschulen, Hauptschulen, Gymnasien oder höhere Lehranstalten sind gut zu erreichen und erleichtern vor allem jungen Familien den Alltag. Der Standort wurde bewusst so gewählt, dass jeder Zielgruppe die alltäglichen Herausforderungen erleichtert werden. Das Altstadtzentrum von Mödling befindet sich ca. 20 gehminuten entfernt.
Optimale Verkehrsanbindung: Busse sowie Bahnhof in Gehdistanz; Mödling ist eine Schulstadt und verfügt über zahlreiche Volksschulen, NMS, Gymnasien, HTL, Fachhochschulen usw.
Vielfältiges Freizeitangebot: Eislaufplatz, Freibad, Naturbadeteiche, Wanderwege, Sportvereine, etc.
Das sehr gut ausgebaute Radwegenetz führt sowohl nach Wien, als auch in die Thermenregion Wienerwald.

Wohneinheiten

Zimmer Wohnfläche Preis Grundriss Anfragen
3
80 m²
€ 699.500
2
69 m²
€ 568.000
3
76 m²
€ 698.000
4
110 m²
€ 916.000
2
58 m²
€ 447.500
3
88 m²
€ 754.000
3
102 m²
€ 956.000
4
107 m²
€ 971.500
4
108 m²
€ 1.020.500
2
56 m²
€ 542.000
3
121 m²
€ 1.063.000
4
106 m²
€ 986.500
2
67 m²
€ 686.000
3
104 m²
€ 940.500
Ulrike Rösch

Ihr Ansprechpartner

Ulrike Rösch

Immobilienmaklerin

Preisdetails

Preis von:
447.500,00 €
Preis bis:
1.063.000,00 €

Fakten

Objektnummer:
141/82011
Objekttyp:
Sonstige
Flächen:
56,19 - 121,75 m²
Verfügbarkeit:
Verfügbar

Ausstattungen

Fernwärme
Fußbodenheizung

Nicht das Passende gefunden?

Jetzt vormerken lassen für zukünftige Projekte!

Max. 500 Zeichen
Diese Seite wird mit reCAPTCHA geschützt, es gelten die Google Datenschutzerklärung und Nutzungsbedingungen.