Wohnen vor den Toren Wiens – nachhaltig, modern & PROVISIONSFREI *** Bezug 4. Quartal 2026 ***

Haus zum Kauf
2203 Großebersdorf

117s-d-bodeneben-Süd
118V
127 NEU V mit Himmel
Image1 - mittel
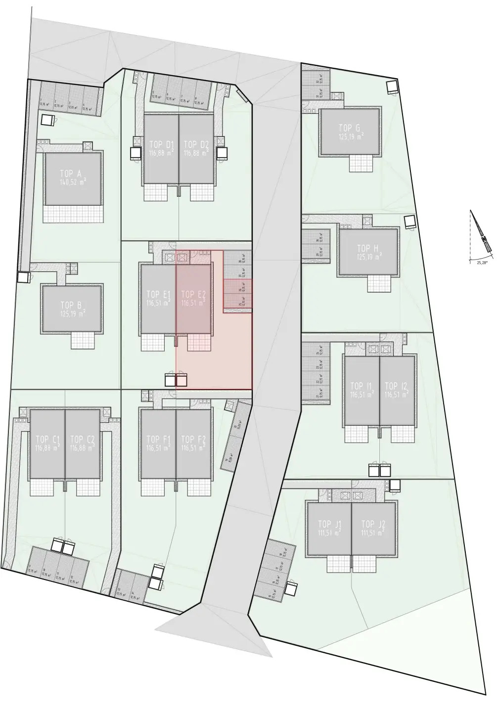
47-20 _TOP-E2_GR_202
47-20 _TOP-E2_LP_202

Beschreibung

In Großebersdorf, nur wenige Kilometer von Wien entfernt, entsteht eine exklusive Wohnanlage mit 4 Einfamilienhäusern und 12 Doppelhaushälften in hochwertiger Holzmassivbauweise. Hier verbindet sich ländliche Idylle mit perfekter Stadtnähe – ideal für Familien und alle, die Ruhe im Grünen genießen möchten, ohne auf urbane Annehmlichkeiten zu verzichten.

Die Highlights im Überblick:

+ Wohnflächen von 111m² bis 141m²
+ Grundstücksgrößen von 249m² bis 443m²
+ Gartenflächen von 136m² bis 307m²

+ Niedrigstenergie-Bauweise, klimaaktiv-zertifiziert
+ Hochwertige Ausstattung: Parkettböden, edle Keramik, elegante Holztreppen
+ Moderne Haustechnik mit Fußbodenheizung & Kühlfunktion, Luftwärmepumpe und kontrollierter Wohnraumlüftung
+ Südseitig ausgerichtete Terrassen und großzügige Gärten inkl. Gerätehaus (Biohort®)
+ 2 Stellplätze pro Haus
+ Schlüsselfertig zum Fixpreis – Bezug 4. Quartal 2026

Die Marktgemeinde Großebersdorf überzeugt mit idyllischen Weingärten, Kellergassen und zahlreichen Freizeitmöglichkeiten. Kindergarten, Volksschule, Nahversorgung und Sportstätten sind fußläufig erreichbar. Über den Knoten Eibesbrunn besteht eine perfekte Anbindung ans Straßennetz, die Wiener Innenstadt ist mit der S-Bahn in rund 30 Minuten erreichbar.

Ihr Vorteil

+ Neubau & Erstbezug
+ Nachhaltiges Wohnkonzept mit höchster Energieeffizienz (fGEE A++)
+ Kostensparend im Betrieb dank innovativer Bauweise
+ Fixpreise und transparente Abwicklung
+ Provisionsfrei
Paula Polaniecki

Ihr Ansprechpartner

Paula Polaniecki

Immobilienmaklerin

Preisdetails

Kaufpreis:
582.420,00 €
Kaufpreis/m²
4.998,88 €
Provision:
3%

Fakten

Objektnummer:
141/84163
Objekttyp:
Haus
Wohnfläche:
116,51 m²
Grundstücksfläche:
269 m²
Zimmer:
4
Badezimmer:
1
Toilette:
1
Baujahr:
2025
Neubau:
Ja
Verfügbarkeit:
Verfügbar

Energieeffizienz

HWB:
29 kWh/(m²*a)
HWB Klasse:
B
fGEE:
0,4
fGEE Klasse:
A++