Erstbezug zum Bestpreis: 2–4?Zimmer?Wohnungen in attraktiver Lage zu verkaufen

Wohnung zum Kauf
1210 Wien

3
4
7
2
10
9
IMG_5430
IMG_5432
IMG_5434
IMG_5435
IMG_5437
IMG_5440
IMG_5442
IMG_5451
MöblierungsbeispielA
2_VISUALISIERUNG
1_VISUALISIERUNG

Beschreibung

Erstbezug zum Bestpreis: 2–4-Zimmer-Wohnungen in attraktiver Lage zu verkaufen

In attraktiver Lage des 21. Bezirks entsteht in der Brünner Straße 105 ein modernes, 7-geschoßiges Wohnhaus mit insgesamt 20 hochwertig ausgestatteten Wohneinheiten. Das Projekt überzeugt durch eine gelungene Kombination aus zeitgemäßer Architektur, energieeffizienter Bauweise und komfortabler Ausstattung.

Gebäude & Allgemeinbereiche
Das Neubauprojekt verfügt über eine durchdachte Grundrissgestaltung und erfüllt sämtliche aktuellen Standards in Bezug auf Wärme-, Schall- und Brandschutz. Im Erdgeschoss stehen 4 Garagenstellplätze (separat zu erwerben um € 29.500,- pro Stellplatz), Fahrradabstellplätze sowie ein großzügiger Kinderspielraum zur Verfügung. Die Erschließung erfolgt über zwei moderne, barrierefreie Aufzüge.

Freiflächen & Außenanlagen
Je nach Wohnung stehen Balkone und/oder Terrassen mit Holzrosten und blickdichten Trennwänden zur Verfügung. Die Außenanlagen sind begrünt und mit einer ansprechenden Wegeführung sowie Beleuchtung ausgestattet.

Ausstattung der Wohnungen
Böden: Hochwertiger Echtholzparkett in Wohnräumen, Feinsteinzeugfliesen in Bad, WC und Vorraum
Bäder: Moderne Sanitärausstattung, teilweise mit Badewanne und/oder bodengleicher Dusche, Handtuchheizkörper, Markenarmaturen
Fenster: Kunststofffenster mit 3-fach-Verglasung, elektrische Außenrollos
Heizung: Fußbodenheizung über zentrale Luft-Wärmepumpe, Bad zusätzlich mit Handtuchheizkörper
Sonnenschutz: Elektrisch bedienbare Außenrollos bei allen Fenstern
Sicherheit: Wohnungseingangstüren mit Sicherheitsstandard RC3 und Mehrfachverriegelung

Lage
Die Brünner Straße bietet eine sehr gute Infrastruktur mit zahlreichen Einkaufsmöglichkeiten, Gastronomie und öffentlicher Verkehrsanbindung (Straßenbahnlinie 31, Buslinien). Grünflächen und Freizeitmöglichkeiten befinden sich in unmittelbarer Nähe.

Dieses Objekt ist ideal für alle, die modernen Wohnkomfort in einer gut angebundenen Stadtlage suchen – ob als Eigennutzer oder Anleger.

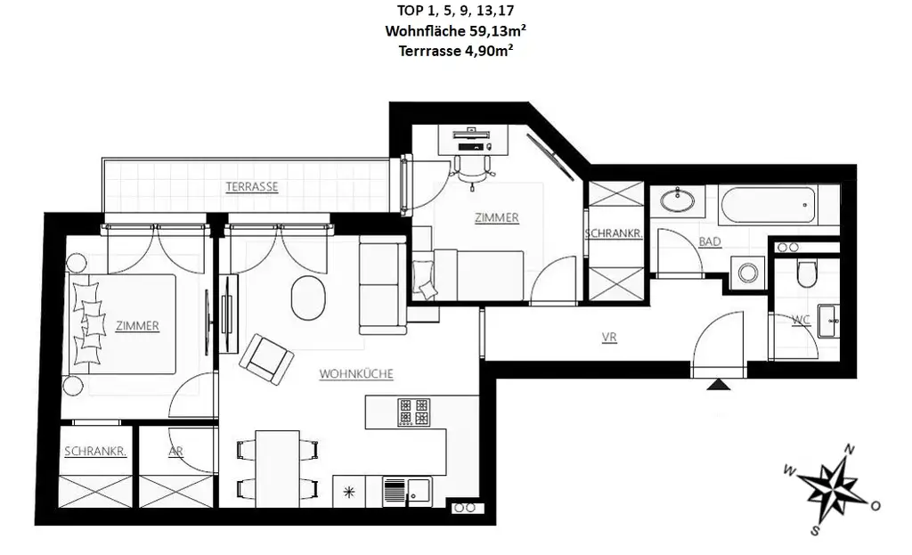
Grundriss

Paula Polaniecki

Ihr Ansprechpartner

Paula Polaniecki

Immobilienmaklerin

Preisdetails

Kaufpreis:
350.667,00 €
Kaufpreis/m²
5.943,51 €
Provision:
3%

Fakten

Objektnummer:
141/83841
Objekttyp:
Wohnung
Wohnfläche:
59 m²
Balkon:
1
Balkonfläche:
5 m²
Zimmer:
3
Stockwerk:
4
Baujahr:
2025/2026
Verfügbarkeit:
Verfügbar

Ausstattungen

Fahrstuhl

Energieeffizienz

HWB:
27,1 kWh/(m²*a)
HWB Klasse:
B
fGEE:
0,74
fGEE Klasse:
A