STILVOLL WOHNEN IN DER SALZBURGER ALTSTADT

Wohnung zur Miete
5020 Salzburg

20251017_090751
20251017_090245
20251017_090328
20251017_090308
20251017_090546
20251017_090505
20251017_090403

Beschreibung

Zur Vermietung gelangt diese charmante 101 qm große Wohnung als Erstbezug nach liebevoller Komplettsanierung, gelegen im letzten Liftstock einer neu revitalisierten Liegenschaft im Herzen der Salzburger Altstadt, in der Judengasse.

Das Haus Judengasse 11, "Fridel im Gmach", ist ein historisches Gebäude, das zu den denkmalgeschützten Objekten in einem der ältesten Viertel der Stadt Salzburg zählt.

In dieser neu revitalisierten Immobilie wurden mit viel Liebe zu Detail die vorgegebenen Denkmalschutzbestimmungen umgesetzt und das Objekt zu einem gelungenen Gesamtkunstwerk gestaltet, welches den Altbaucharme mit architektonisch aufwertenden und das Wohngefühl steigernden modernen Details abrundet.

Genießen Sie das quirlige Leben der Stadt unmittelbar vor der eigenen Haustür und entspannen Sie in Ihrem neuen Zuhause, Ihrem persönlichen Rückzugsort mit Flair.

Die Wohnung besticht durch den Altbaucharakter, die Architektur und den wunderbaren Blick - die attraktive Raumaufteilung zeigt sich wie folgt:
* Eingang/Vorraum
* Abstellraum/Garderobe
* Wohnzimmer
* Küche/Essbereich
* 2 Zimmer
* Gang/Arbeitsbereich
* Badezimmer mit Walk-in-Dusche und WC, Doppelhandwaschbecken
* Abstellraum/Waschraum
* Gäste-WC mit Handwaschbecken
* Vorraum

Die ansprechendeTischlerküche fügt sich harmonisch in den attraktiven Küchen-Essbereich und ist mit hochwertigen Geräten ausgestattet. Abgesehen von der Küche wird die Wohnung unmöbliert als Erstbezug nach Komplettsanierung vermietet.

Ein neu eingebauter Personenaufzug führt Sie in die einzelnen Etagen, wie auch in das Kellergeschoß, wo jeder Wohnung ein Kellerabteil zugeordnet ist.
Ebenso findet sich hier ein geräumiger Fahrradabstellraum.

Zur Vereinbarung Ihres persönlichen Besichtigungstermines steht Ihnen Frau Mag.(FH) Petra Rohrmoser-Lichtenschopf jederzeit gerne unter Tel.: +43 676 834 34 388 zur Verfügung.

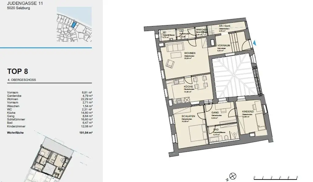
Grundriss

Petra Rohrmoser-Lichtenschopf

Ihr Ansprechpartner

Petra Rohrmoser-Lichtenschopf

Immobilienmaklerin

Preisdetails

Gesamtmiete:
(exkl. Heizkosten)
2.260,77 €
Nettomiete:
1.591,38 €
Betriebskosten netto:
353,64 €
Umsatzsteuer:
214,71 €
Heizkosten brutto:
121,25 €
Kaution:
5.835,06 €

Fakten

Objektnummer:
141/84045
Objekttyp:
Wohnung
Wohnfläche:
101,04 m²
Zimmer:
4
Badezimmer:
1
Toilette:
2
Baujahr:
1500
Verfügbarkeit:
Verfügbar

Ausstattungen

Fahrstuhl
Abstellraum
Fernwärme

Energieeffizienz

HWB:
81 kWh/(m²*a)
HWB Klasse:
C
fGEE:
1,64
fGEE Klasse:
C