Stillvolle 2-Zimmer-Wohnung im Erdgeschoss

Wohnung zur Miete
8020 Graz

Beschreibung

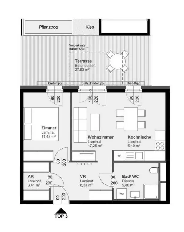
Diese ca. 52,80 m² große 2-Zimmer-Wohnung im Erdgeschoss bietet eine praktische Raumaufteilung und einen gemütlichen Balkon.

-Raumaufteilung:
-Vorraum
-Wohnzimmer mit Balkonzugang
-Schlafzimmer
-Badezimmer mit Dusche und WC
-Abstellraum
-Terrasse

Diese Wohnung wird ohne Kücheneinrichtung vermietet.
Ein Kellerabteil ist der Wohnung zugeteilt und im Mietpreis inkludiert.

Die Bruttomiete setzt sich zusammen aus:
Hauptmietzins, Betriebskosten und Umsatzsteuer.
Heizkosten und Energiekosten sind nicht enthalten.

Lage und Infrastruktur:
In unmittelbarer Nähe befinden sich zahlreiche Einkaufsmöglichkeiten wie Spar, Interspar und das Einkaufszentrum Citypark.
Die Anbindung an öffentlichen Verkehr ist durch die Nähe zum Grazer Hauptbahnhof hervorragend. Für die Freizeitgestaltung stehen Parks wie der Josef-Huber- oder Oeverseepark sowie Restaurants, Cafés und kulturelle Einrichtungen in der Umgebung zur Verfügung.

Mietbeginn:
ab sofort

Mietdauer:
unbefristet

Jetzt online anfragen oder anrufen – wir melden uns zeitnah mit Terminvorschlägen.

Weitere Immobilien finden Sie auf unserer a href="https://rustler.eu/"Homepagea_

Grundriss

Arber Licaj

Ihr Ansprechpartner

Arber Licaj

Immobilienmakler

Preisdetails

Gesamtmiete:
636,28 €
Nettomiete:
390,85 €
Betriebskosten netto:
187,59 €
Umsatzsteuer:
57,84 €
Kaution:
1.908,84 €
Provision:
provisionsfrei

Fakten

Objektnummer:
141/84737
Objekttyp:
Wohnung
Wohnfläche:
52,8 m²
Terrasse:
1
Terrassenfläche:
27,93 m²
Zimmer:
2
Badezimmer:
1
Toilette:
1
Baujahr:
2019
Verfügbarkeit:
Verfügbar

Ausstattungen

Abstellraum
Fernwärme
Zentralheizung

Energieeffizienz

HWB:
29,68 kWh/(m²*a)
HWB Klasse:
B