SMART WOHNEN NAHE FH JOANNEUM I 2-ZIMMERWOHNUNG MIT BALKON

Wohnung zur Miete
8020 Graz

IMG_E6375
IMG_E6374

Beschreibung

Diese optimal geschnittene 2-Zimmer-Wohnung kombiniert ruhiges Wohnen mit einer erstklassigen Anbindung. In wenigen Schritten erreichen Sie Straßenbahn und Bus – perfekt für alle, die flexibel unterwegs sein möchten.
Gerade Studierende der FH Joanneum profitieren von der Lage: Der Campus ist bequem mit dem Rad erreichbar. Sportbegeisterte freuen sich über gleich mehrere Fitnessstudios in der Umgebung sowie das nahegelegene Sport- und Wellnessbad Auster, das Erholung und Aktivität gleichermaßen bietet.

Auf einen Blick

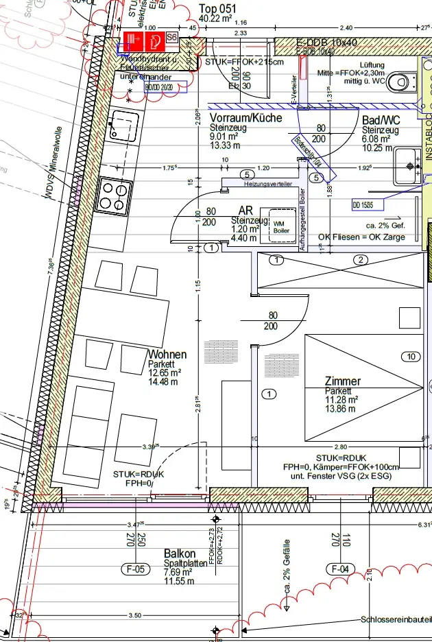
- Wohnfläche: ca. 40,22 m²
- 2 Zimmer
- Sonniger Balkon
- 1. Stockwerk
- Bezug: ab Mai

Die Wohnung punktet mit einem hellen Wohnbereich inklusive möblierter Küche, einem gemütlichen Schlafzimmer, einem praktischen Abstellraum sowie einem modernen Badezimmer mit Dusche.Der Balkon erweitert den Wohnraum nach draußen und bietet Platz für eine kleine Sitzgelegenheit oder dekorative Pflanzen.

Pluspunkt: Das Gebäude wird umweltfreundlich über Erdwärme beheizt – das schont nicht nur Ressourcen, sondern kann sich auch positiv auf Ihre Nebenkosten auswirken.

Ausstattung:

- Einbauküche mit Geschirrspüler
- Badezimmer mit Dusche
- Fußbodenheizung
- Parkettböden in Wohn- und Schlafräumen
- Kabelanschluss für TV & Internet
- Abstellraum mit Waschmaschinenanschluss

Die Bruttomiete setzt sich aus Hauptmietzins, Betriebskosten und Umsatzsteuer zusammen. Heiz- und Energiekosten sind nicht inkludiert.

Lage:

Besonders attraktiv ist die Lage für Studierende und Berufstätige: Die FH Joanneum ist in nur 15 Gehminuten oder wenigen Minuten mit dem Rad erreichbar. Auch die Grazer Innenstadt mit all ihren kulturellen und kulinarischen Highlights ist fußläufig schnell zu erreichen. Für Sportbegeisterte ist die Nähe zum Sport- und Wellnessbad Auster in Eggenberg sowie zu diversen Fitnessstudios ein großer Pluspunkt.

Die Anbindung an den öffentlichen Nahverkehr ist ideal. Der Hauptbahnhof ist nur 6 Gehminuten entfernt und bietet Ihnen unzählige Verbindungen in alle Stadtteile und darüber hinaus. Die meisten alltäglichen Erledigungen können Sie bequem zu Fuß erledigen. Das macht das Wohnen hier besonders komfortabel und nachhaltig.

Gebäude-Extras
- Lift
- Fahrradabstellraum
- Haustiere nach Absprache
- Optionaler TG-Stellplatz (€ 100,00 / Monat)

Jetzt online anfragen oder telefonisch Kontakt aufnehmen – wir melden uns zeitnah mit Terminvorschlägen für eine Besichtigung.

Lage und Verkehrsanbindung

Bahnhofsnähe, öffentl. Verkehrsmittel

Grundriss

Arber Licaj

Ihr Ansprechpartner

Arber Licaj

Immobilienmakler

Preisdetails

Gesamtmiete:
551,69 €
Nettomiete:
402,20 €
Betriebskosten netto:
99,34 €
Umsatzsteuer:
50,15 €
Kaution:
1.700,00 €
Provision:
provisionsfrei

Fakten

Objektnummer:
141/85018
Objekttyp:
Wohnung
Wohnfläche:
40,22 m²
Balkon:
1
Balkonfläche:
7,69 m²
Zimmer:
2
Badezimmer:
1
Toilette:
1
Baujahr:
2016
Neubau:
Ja
Verfügbarkeit:
Verfügbar

Ausstattungen

Fahrstuhl
Kabel/Satelliten-TV
Abstellraum
Fernwärme
Zentralheizung

Energieeffizienz

HWB:
26,11 kWh/(m²*a)
HWB Klasse:
B
fGEE:
0,75
fGEE Klasse:
A