Schönes Zuhause in Ruhelage

Wohnung zur Miete
1160 Wien

20260311_135431
20260311_135436
20260311_135424
20260311_135442
20260311_135412
20260311_135259
20260311_135136
20260311_135144

Beschreibung

In dem nahe der Neulerchenfelder Straße gelegenen, renovierten, Altbau gelangt diese charmante 2-Zimmer-Wohnung zur Vermietung. Die Wohnung verfügt über 48m² und kann durch die ruhige Lage und den guten Zustand überzeugen.
Besonders hervorzuheben ist der bekannte Altbaucharme mit hohen Räumen und geräumigen Zimmern sowie die zentrale Lage mit hervorragender öffentlicher Anbindung.
Küche:
Ausgestattet mit Herdplatte, Backrohr, Geschirrspüler, Kühlschrank, Gefrierfach
Badezimmer:
Dusche, Waschmaschinenanschluss, Handtuchtrockner
Allgemeine Informationen:
Hochparrter ohne Lift
Heizungsart:
Elektroheizung
Aufteilung:
Die Aufteilung gliedert sich wie folgt:
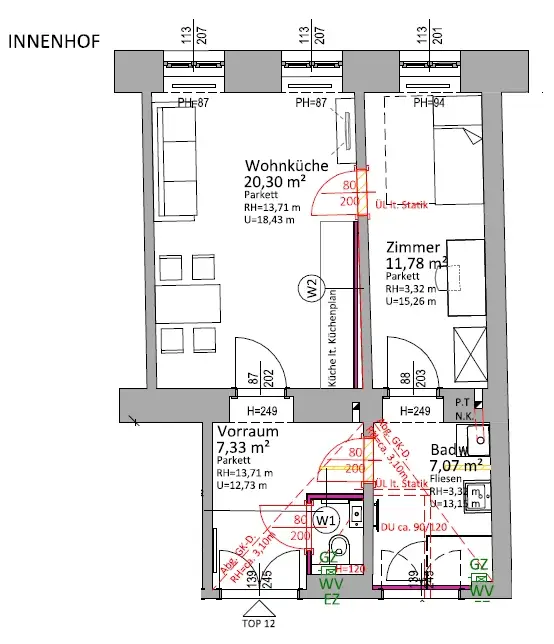
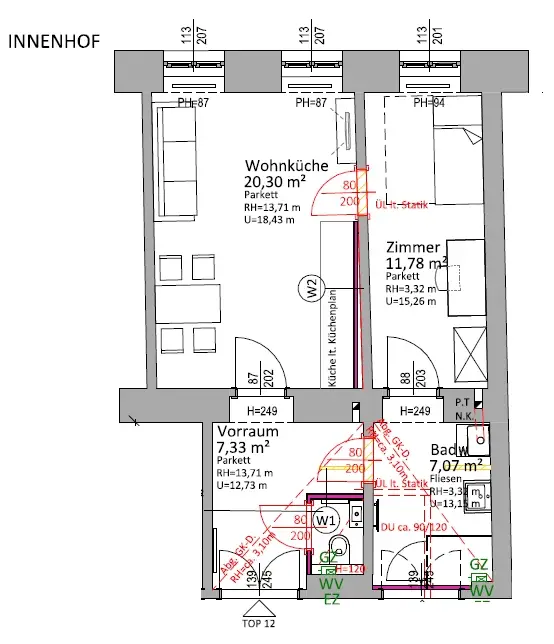
• Vorraum
• Wohnzimmer mit Küche
• Schlafzimmer
• Badezimmer
• Separates WC
Lage:
Durch die zentrale Lage mit guter Infrastruktur befinden sich öffentliche Verkehrsmittel, Nahversorger sowie Einkaufsmöglichkeiten in unmittelbarer Nähe.
U-Bahn: U6 Josefstätder Straße
Straßenbahn: 2, 33

Kosten:
Kaution: 1.980,00€
Adm. Aufwand 336,00€

Grundriss

Joanna Maciejasz

Ihr Ansprechpartner

Joanna Maciejasz

Immobilienmaklerin

Preisdetails

Gesamtmiete:
(exkl. Heizkosten)
659,32 €
Nettomiete:
462,93 €
Betriebskosten netto:
118,29 €
Umsatzsteuer:
59,94 €
Heizkosten brutto:
19,98 €
Kaution:
1.980,00 €

Fakten

Objektnummer:
141/85264
Objekttyp:
Wohnung
Wohnfläche:
48,73 m²
Zimmer:
2
Badezimmer:
1
Toilette:
1
Altbau:
Ja
Verfügbarkeit:
Verfügbar

Ausstattungen

Etagenheizung

Energieeffizienz

HWB:
87,3 kWh/(m²*a)
HWB Klasse:
C
fGEE:
1,65
fGEE Klasse:
C