PROVISIONSFREI - Familienfreundlich wohnen I Nahe Stadtstrand und Mur

Wohnung zum Kauf
8010 Graz

Küche
Balkon
Wohnzimmer
Vorraum
Schlafzimmer
Badezimmer 1
Badezimmer 2
Gang
Zimmer 1
Zimmer 2
Haus K
Haus K_1
Außenanlage

Beschreibung

JAKOMINI VERDE - PROVISIONSFREI
Modern, hochwertig, nachhaltig - Ihr neues Zuhause im Graz-Jakomini!

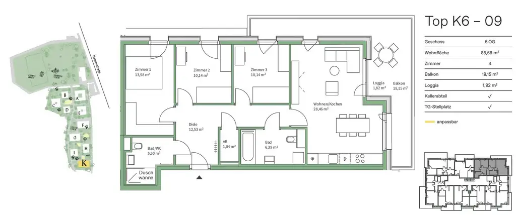
Im 6. Obergeschoss verbindet die Wohnung eine zentral liegende Wohnküche mit drei gut proportionierten Schlafzimmern – klar gegliedert für Alltag und Rückzug. Der Balkon erweitert den Wohnbereich ins Freie; seine Fläche lässt Sitzplatz, Bepflanzung und Liegestuhl mühelos zu.
Besonders komfortabel sind die beiden Badezimmer – sie entlasten den Tagesablauf und verkürzen Wartezeiten. Der Abstellraum schafft Platz für Haushaltsgeräte, Vorräte und Garderobe; die Wohnbereiche bleiben frei. Kellerabteil und Lift sind vorhanden, ein Tiefgaragenplatz kann auf Wunsch ergänzt werden. Insgesamt entsteht eine Wohnung mit klarer Raumlogik und kurzen Wegen.

Auf einen Blick

- 6. OG mit Lift
- Wohnküche + 3 Schlafzimmer
- 2 Badezimmer, Abstellraum
- Balkon
- Kellerabteil
- Fußbodenheizung
- Tiefgaragenplatz optional

Kurz zum Projekt:

Jakomini Verde steht für zeitgemäßes, nachhaltiges Wohnen: Wasser-Wärmepumpe für das Heizen, Fernwärme für die Warmwasserbereitung, Fußbodenheizung, hochwertige Materialien und ein barrierearmer Zugang – ruhig, urban und gut eingebunden.

Highlights der Wohnung

- Moderne Architektur – Lichtdurchflutete Räume, bodentiefe Fenster
- Hochwertige Ausstattung – Parkett, Fußbodenheizung, 3-fach-Verglasung
- Nachhaltiges Energiekonzept – Wärmepumpe, Fernwärme, PV-Anlage (Mieterstrommodell)
- Top-Infrastruktur – Öffis, Einkaufsmöglichkeiten, Naherholung in direkter Nähe
- Fahrradfreundlich – direkte Anbindung an das Radwegenetz
- Komfort & Barrierefreiheit – Lift, stufenloser Zugang, Tiefgarage verfügbar

Lage & Infrastruktur

Zwischen Stadt und Grün gelegen, bietet die Adresse den Augarten und den Grazer Stadtstrand an der Mur in angenehmer Nähe – für Pause am Wasser, Spielbereich mit Kindern oder eine Runde im Freien. Der Murradweg verknüpft das Quartier direkt mit der Innenstadt und den umliegenden Bezirken; wer lieber öffentlich fährt, hat Straßenbahn und Bus rasch zur Hand. Einkauf, Cafés und Alltagsversorgung finden sich rundum. Die Kombination aus modernem, nachhaltigem Wohnbau in ruhiger Umgebung und sehr guter Anbindung an ÖV, Radnetz und die Autobahn macht diese Wohnung zu einer soliden Entscheidung für die eigene Zukunft.

Diese Fotos sind virtuell möbliert und dienen der Veranschaulichung. Die Wohnung wird unmöbliert übergeben.

Jetzt online anfragen oder telefonisch Kontakt aufnehmen – wir melden uns zeitnah mit Terminvorschlägen für eine Besichtigung.

Grundriss

Margit Pürrer

Ihr Ansprechpartner

Margit Pürrer

Immobilienmaklerin

Preisdetails

Kaufpreis:
469.000,00 €
Kaufpreis/m²
5.290,47 €
Provision:
provisionsfrei

Fakten

Objektnummer:
141/82312
Objekttyp:
Wohnung
Wohnfläche:
88,65 m²
Balkon:
1
Loggia:
1
Balkonfläche:
18,15 m²
Loggia Fläche:
1,82 m²
Zimmer:
4
Badezimmer:
2
Toilette:
2
Baujahr:
2024
Verfügbarkeit:
Verfügbar

Ausstattungen

Fahrstuhl

Energieeffizienz

HWB:
22,1 kWh/(m²*a)
HWB Klasse:
A
fGEE:
0,64
fGEE Klasse:
A+