Neubau-Mietwohnung Erstbezug im Stadtkern

Wohnung zur Miete
2340 Mödling

WoKü
Image00011
WoKü5
Image00007
Image00002
SZ2
Image00016

Beschreibung

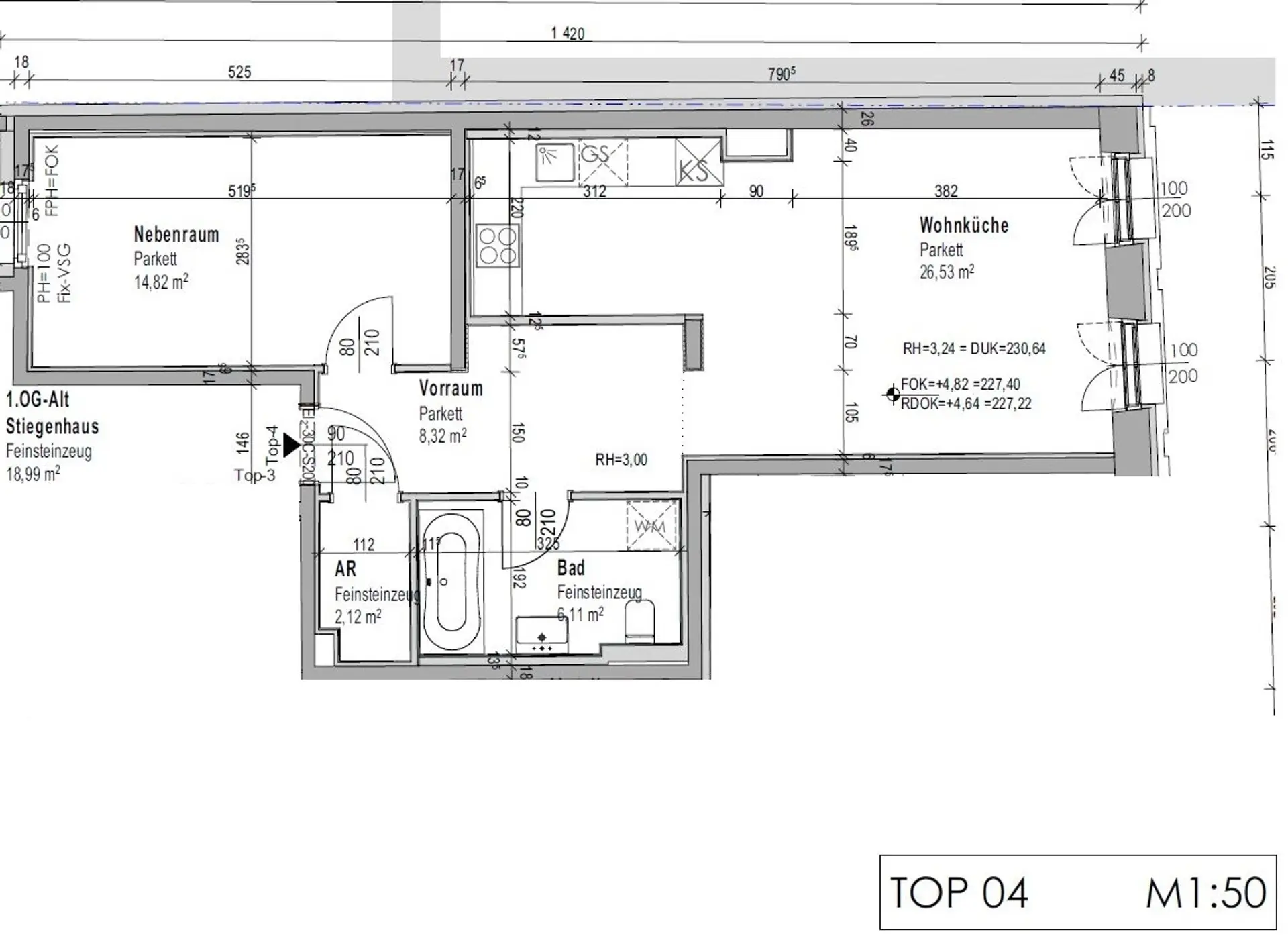
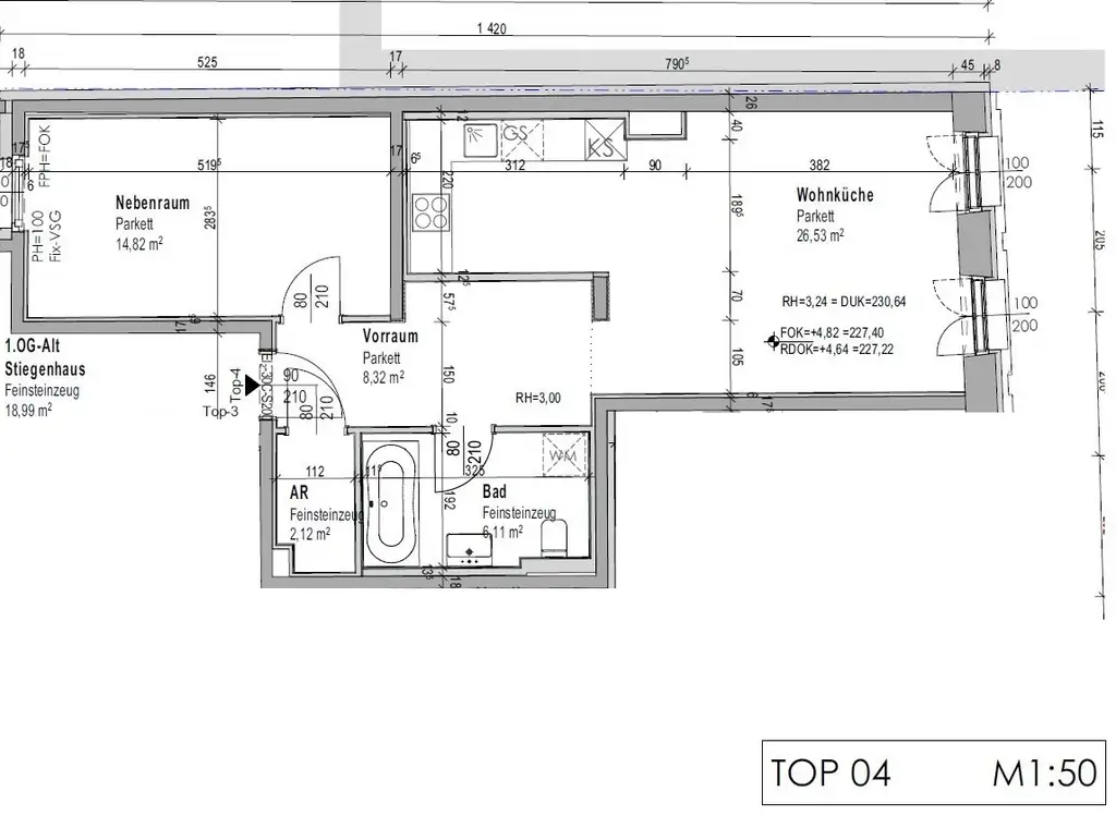
Diese sehr freundliche 2-Zimmer-Erstbezugs-Wohnung befindet sich im Zentrum von Mödling, in einer kleinen neuen Anlage mit nur 16 Wohneinheiten.
Über das zentrale Stiegenhaus oder mit dem Lift (barrierefrei), gelangen Sie in diese moderne, südseitig ausgerichtete Wohnung, mit einer beeindruckenden Raumhöhe von ca. 3,10 m.

Vom Vorraum begehbar erreichen Sie ein großzügiges und uneinsehbares Schlafzimmer mit Nordausrichtung, einen hellen Wohnküchenbereich, das Badezimmer sowie einen praktischen Abstellraum.
Eine neutrale Küche mit Kühlschrank, Backofen und E-Herd samt Dunstabzug gehören selbstverständlich zur Ausstattung.
Das Bad ist mit einer Badewanne, einem Waschtisch sowie einem WC ausgestattet.

Die Wohnung wird mittels Fernwärme ausschließlich über Fußbodenheizung beheizt und im Sommer mittels Splitgerät gekühlt.

Mitvermietet wird ein Kellerabteil mit ca. 5 m². Optional kann ein Garagenplatz dazu gemietet werden.
Ein Kinderwagen- und Fahrradabstellraum sowie der Müllraum, befinden sich auf Untergeschossebene.

Die Wohnung befindet sich in einem kürzlich ferstiggestellten Neubau. Im Süden befindet sich der Zugangsbereich und die Zufahrtsstraße, über die die Tiefgarage angefahren werden kann.

Die zentrale Lage gewährleistet eine optimale Anbindung an die öffentlichen Verkehrsmittel sowie zu sämtlichen Einkaufsmöglichkeiten in der und rund um die Fußgängerzone. Der Bahnhof Mödling sowie diverse Busstationen befinden sich in unmittelbarer Nähe.
Die umliegende Nahversorgung sowie Kindergarten, Volks- und diverse weitere Schulen, Ärztezentren und die Fußgängerzone, sind ebenfalls in wenigen Minuten zu Fuß erreichbar.

Lage und Verkehrsanbindung

Bahnhofsnähe, Fußgängerzone, sonnig, Zentrum-Nähe

Grundriss

Jutta Fischer-Ledholder

Ihr Ansprechpartner

Jutta Fischer-Ledholder

Immobilienmaklerin

Preisdetails

Gesamtmiete:
1.195,00 €
Kaution:
3.585,00 €

Fakten

Objektnummer:
141/83410
Objekttyp:
Wohnung
Wohnfläche:
58 m²
Zimmer:
2
Badezimmer:
1
Toilette:
1
Baujahr:
2024/2025
Neubau:
Ja
Verfügbarkeit:
Verfügbar

Ausstattungen

Barrierefrei
Boden:
Parkett
Fahrstuhl
Abstellraum
Fernwärme
Fußbodenheizung

Energieeffizienz

HWB:
35 kWh/(m²*a)
HWB Klasse:
B
fGEE:
0,8
fGEE Klasse:
A