Muhr58 | Neubauwohnung an der U1 | Erstbezug | Hofruhelage

Wohnung zum Kauf
1100 Wien

Balkon
Wohnzimmer 2
Badezimmer
Schlafzimmer
Schlafzimmer 1
Schlafzimmer 2
Vorraum
WC
Wohnzimmer
Wohnzimmer 3
M58

Beschreibung

PROJEKTBESCHREIBUNG

In der Muhrengasse 58 sind 19 smarte Neubauwohnungen fertiggestellt! Das Projekt besticht durch die unmittelbare Nähe zur U1 und ist unweit der belebten Einkaufsmeile Favoritenstraße gelegen. Hier befinden sich attraktive Wohnräume, verpackt in einer zeitgenössich-modernen Fassade, die das Stadtviertel beleben und bereichern werden - genau dort, wo urbanes Leben auf Zukunftsvision trifft.


Aufgrund der smarten Grundrisse sowie der zentralen Lage, verspricht das Objekt seinen Anlegern eine besonders gute Vermietbarkeit!


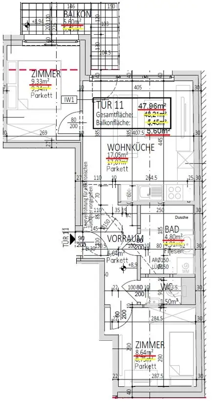
Die Wohnung T11 verfügt über 47,96m² Wohnfläche, und teilt sich wie folgt auf:

Vorraum, Wohnküche mit Zugang zum Balkon, Schlafzimmer (hofseitig), Schlafzimmer (straßenseitig), Badezimmer, WC separat




AUSSTATTUNG

• Exklusive Parkettböden in allen Wohn- und Schlafräumen
• 3-fach verglaste Fenster
• Großzügige Terrassen, Balkone oder Loggien
• Großformatige Fliesen in den Sanitärbereichen.
• Bodenbündige Duschen mit qualitativ hochwertigen Armaturen
• Außenrollos mit elektrischem Antrieb
• Nachhaltiges Heizen mittels Luftwärmepumpe und Fußbodenheizung
• Kabel-TV Anschlüsse Multimediadose
• Massive Wohnungseingangstüren
• Großzügige Einlagerungsräume
• Ausreichend Kinderwagenabstellplätze (mit dem Aufzug erreichbar)
• Ausreichend Fahrradabstellplätze (mit dem Aufzug erreichbar)
• Energiekennzahlen:


Lage & Infrastruktur

Selten präsentiert sich ein Stadtteil so dynamisch, aufstrebend, authentisch und im Aufbruch wie Favoriten. Man befindet sich eingebettet zwischen der Favoritenstraße & Laxenburger Straße, und doch nur wenige Minuten von der Wiener Innenstadt entfernt.


Öffentliche Anbindung:
U1-Station Troststraße: 300m
Straßenbahn: 11, 0
Buslinie: 65A, 66A



Für weitere Rückfragen sowie einen persönlichen Termin zu diesen Projekt stehen wir Ihnen gerne zur Verfügung!

Grundriss

Timo Kohlweiss

Ihr Ansprechpartner

Timo Kohlweiss

Immobilienmakler

Preisdetails

Kaufpreis:
303.000,00 €
Kaufpreis/m²
6.317,76 €
Provision:
3%

Fakten

Objektnummer:
141/84703
Objekttyp:
Wohnung
Wohnfläche:
47,96 m²
Balkon:
1
Balkonfläche:
5,52 m²
Zimmer:
3
Badezimmer:
1
Toilette:
1
Baujahr:
2025
Neubau:
Ja
Verfügbarkeit:
Verfügbar

Ausstattungen

Barrierefrei
Fahrstuhl
Abstellraum

Energieeffizienz

HWB:
25,6 kWh/(m²*a)
HWB Klasse:
B
fGEE:
0,75
fGEE Klasse:
A