Modernes Leben zwischen Stadt und Natur – Ihr neues Zuhause in der Donaustadt

Wohnung zum Kauf
1220 Wien

DJI_20251229154112_0
DJI_20251229154216_0
DJI_20251229154502_0
Visualisierung 1
Visualisierung Außen
Visu Balkon
Visu Schlafzimmer
Visu Wohnzimmer
Visu Wohnzimmer 2
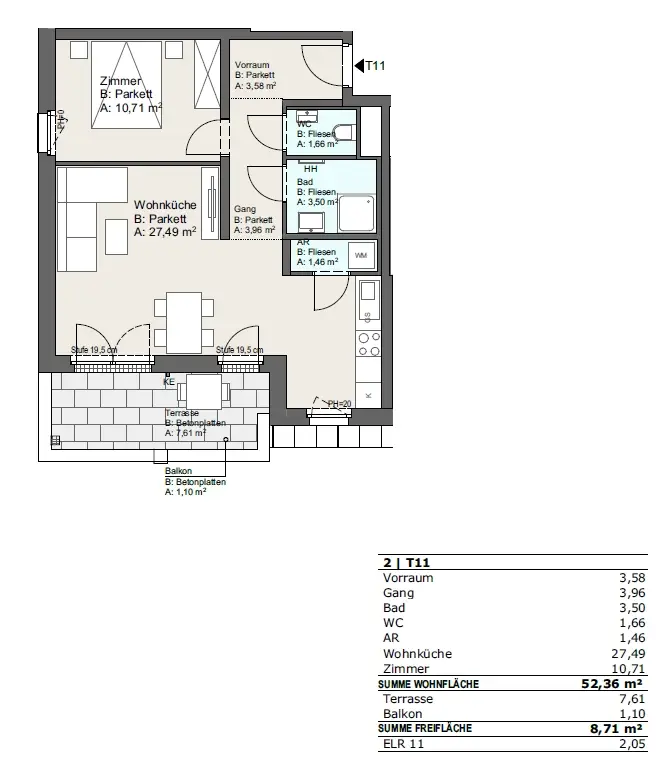
Stiege 2 Top 11

Beschreibung

Willkommen in einem Wohnprojekt, das modernes Design, nachhaltige Technologien und höchste Lebensqualität vereint. Am Khuenweg 5 entsteht eine exklusive Wohnanlage mit 30 Eigentumswohnungen, die durch durchdachte Architektur, großzügige Freiflächen und eine naturnahe Lage im Grünen überzeugen.

Architektur & Ausstattung
Das Projekt besticht durch eine ästhetisch anspruchsvolle, moderne Architektur, die sich harmonisch in die Umgebung einfügt. Hochwertige Materialien, Eichenparkett, großformatige Feinsteinfliesen, sowie Markenarmaturen in Bad und Küche garantieren ein exklusives Wohngefühl. Großzügige Fensterflächen schaffen helle, freundliche Räume und sorgen für ein angenehmes Wohnklima. Jede Einheit verfügt über mindestens eine Freifläche – ob Balkon, Terrasse, Loggia oder Garten – mit hochwertigen Betonplattenbelägen, punktueller Ambientebeleuchtung und frostsicherer Wasserentnahmestelle. Auch funktionale Aspekte wurden nicht vergessen: Fußbodenheizung, elektrische Handtuchheizkörper im Bad, dreifach verglaste Holz-Alu-Fenster mit elektrischem Sonnenschutz sowie vorbereitete Anschlüsse für TV, Internet, Telefon und Alarmanlagen (in EG-Wohnungen) sind Standard.

Zur gemeinschaftlichen Nutzung stehen Einlagerungsräume, ein Fahrrad- und Kinderwagenraum, ein Paket- Postbereich, ein Kleinkinderspielplatz auf Eigengrund zur Verfügung. Außerdem gibt es eine Tiefgarage mit 17 PKW-Stellplätzen (inkl. Vorbereitung für E-Mobilität) wo ein Stellplatz für € 28.800,- erworben werden kann. Die Erschließung aller Geschoße erfolgt barrierefrei über Liftanlagen.

Nachhaltigkeit & Technik
Innovative Technologien wie eine Photovoltaikanalge, eine zentrale Wasser-Wasser-Wärmepumpe und moderne Isolierungssysteme senken nicht nur die Betriebskosten, sondern ermöglichen ein umweltbewusstes und zukunftssicheres Wohnen – ganz ohne fossile Brennstoffe. In den Sommermonaten sorgt eine Temperierung über den Fußboden für angenehme Raumluft und in Dachgeschosswohnungen steht zusätzlich eine Split-Klimaanlage mit Einzelraumsteuerung zur Verfügung. Das Projekt ist zudem mit dem klimaaktiv-Zertifikat ausgezeichnet.

Lage & Infrastruktur
Khuenweg 5 liegt eingebettet in eine ruhige Wohngegend, geprägt von Grünflächen, Naherholungsgebieten und gleichzeitig urbaner Infrastruktur. Kindergärten, Schulen, Einkaufsmöglichkeiten und Gastronomie befinden sich in Gehweite, die öffentliche Verkehrsanbindung ist ausgezeichnet. In nur wenigen Minuten erreichen Sie das Mühlwasser, die Donauinsel oder das weitläufige Radwegenetz. Ob sportlich aktiv oder naturverbunden entspannt – hier ist Ihre Freizeitgestaltung so vielfältig wie Ihr Lebensstil.

Weitere Highlights
*
Barrierefreier Zugang zu allen Einheiten
* Großzügige Freiflächen wie Balkone, Terrassen oder Gärten
* E-Parkplätze (Vorbereitung für Ladestationen)
* Ideal als Eigentumswohnung oder Vorsorgeinvestition

Kontaktieren Sie uns noch heute für weitere Informationen oder einen Besichtigungstermin!
Paula Polaniecki

Ihr Ansprechpartner

Paula Polaniecki

Immobilienmaklerin

Preisdetails

Kaufpreis:
341.040,00 €
Kaufpreis/m²
6.513,37 €
Provision:
3%

Fakten

Objektnummer:
141/83636
Objekttyp:
Wohnung
Wohnfläche:
52,36 m²
Terrasse:
1
Terrassenfläche:
6,64 m²
Zimmer:
2
Badezimmer:
1
Toilette:
1
Baujahr:
2025
Neubau:
Ja
Verfügbarkeit:
Verfügbar

Ausstattungen

Energieeffizienz

HWB:
29,7 kWh/(m²*a)
HWB Klasse:
B
fGEE:
0,6
fGEE Klasse:
A+