Modernes Familienhaus am Wienerwald – 150 m² Wohnfläche, Garten & Dachterrasse in Mauerbach

Haus zum Kauf
1140 Wien

JYTY4024
FWNH0752
JJXX8381
EVFZ3235
HBZR0435
DYJY9744
WIVY0603
Haus 4_01 EG
Haus 4_01 1.OG und 2
Lageplan
Lageplan Häuser

Beschreibung

Allgemein:
Auf einem wunderschönem Grundstück im Herzen Mauerbachs kommen ab sofort 23 fertiggestellte Reihenhäuser zum Verkauf. Am westlichen Rand und nur wenige Minuten von der Wiener Stadtgrenze entfernt gelegen, grenzt es zudem unmittelbar an den Wienerwald. Bei der Balancierung von Freiflächen und bebauten Arealen wurde darauf geachtet, so viel wie möglich an Grün zu bewahren. Naturnähe, Ruhe und hohe Lebensqualität haben oberste Priorität. Die Zielsetzung war es, ein grünes Wohnidyll zu schaffen, in dem man das Leben genießen kann.
Um dieses Wohngefühl zu erzielen, war für uns besonders wichtig, dass sich die Architektur der einzelnen Häuser nahtlos in die Natur einfügt. Erreicht haben wir das unter anderem durch die teilweise Holzverkleidung der Gebäude und Begrünung der Dachflächen.

Eine Übersicht sämtlicher verfügbaren Häuser erhalten Sie selbstverständlich auf Anfrage!


Facts:
• Grundstücksgröße rund 17.000 m²
• 23 noch verfügbare Familienhäuser im Eigentum
• ab € 599.000,-
• ca. 150 m² Wohnfläche
• bis zu 350 m² Garten
• nachhaltiges und kostengünstiges Heizen und Kühlen mittels Luftwärmepumpe
• Badeteich, sowie Fitness- und Workout-Area
• je Haus 2 PKW-Stellplätze


Fertigstellung: Ende 2025


Ausstattung
Die Liebe zum Detail zieht sich durch alle Bereiche und basiert auf ausgewählten Materialien und hochwertigen Markenprodukten.
Elegante Parkettböden in allen Wohn- und Schlafräumen, Innentüren weiß matt mit Holzzarge bzw. Glastüren, großzügige Terrasse im Erdgeschoß mit Kaltwasseranschluss und Außenbeleuchtung, Terrasse im Dachgeschoß mit beeindruckender Aussicht, großformatige Fliesen (60 x 60 cm) in den Sanitärbereichen, Badewannen mit Markenarmaturen, bodenbündige Duschen, sämtliche Häuser werden vollständig mit Raffstores ausgestattet und noch vieles mehr...



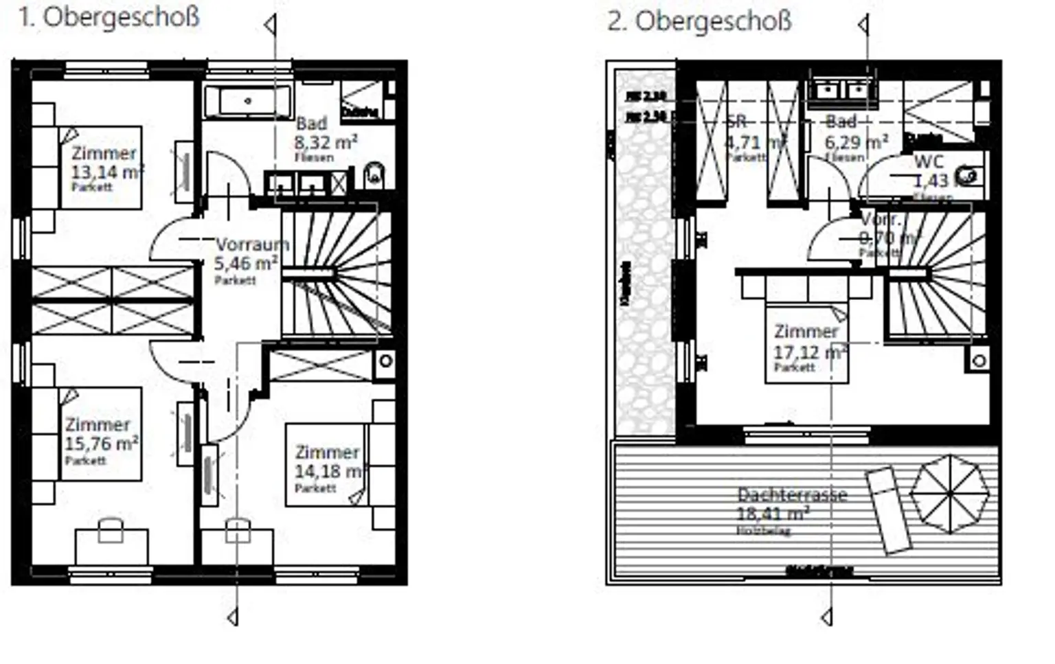
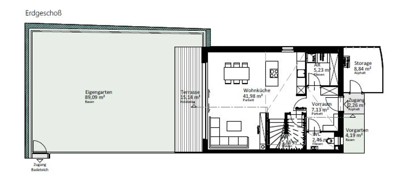
Aufteilung des Hauses:

> Großzügige Wohnküche
> 4 Schlafzimmer
> 2 Bäder mit WC
> 1 separates WC im EG
> 2 Abstellräume
> 1 Außenstorage
> 2 Stellplätze
> Garten/Vorgarten
>Terrasse EG
>Dachterrasse


Lage & Infrastruktur:
Die waldreiche Landschaft ringsum wird von zahlreichen Wanderwegen und Radstrecken durchzogen. Sämtliche Nahversorger befinden sich in unmittelbarer Nähe.
Die Wiener Stadtgrenze passieren Sie mit dem PKW in nur 4 Minuten und mit den öffentlichen Verkehrsmitteln in lediglich 9 Minuten. In den ersten Bezirk brauchen Sie mit Bus und Schnellbahn gerade einmal 45 Minuten. Der Busbahnhof befindet sich nur wenige Gehminuten entfernt.
Timo Kohlweiss

Ihr Ansprechpartner

Timo Kohlweiss

Immobilienmakler

Preisdetails

Kaufpreis:
679.000,00 €
Kaufpreis/m²
4.512,53 €
Betriebskosten netto:
376,15 €

Fakten

Objektnummer:
141/85210
Objekttyp:
Haus
Wohnfläche:
150,47 m²
Zimmer:
5
Badezimmer:
2
Toilette:
3
Baujahr:
2025
Neubau:
Ja
Verfügbarkeit:
Verfügbar

Ausstattungen

Abstellraum

Energieeffizienz

HWB:
26 kWh/(m²*a)
HWB Klasse:
B
fGEE:
0,61
fGEE Klasse:
A+