Inklusive Parkplatz I Moderne 2-Zimmer-Wohnung mit südseitigem Balkon in Toplage

Wohnung zur Miete
8020 Graz

Balkon...
Balkon..
Wohnzimmer
Küche
Küche.
Schlafzimmer
Badezimmer

Beschreibung

Diese gut geschnittene Wohnung in der Eckertstraße überzeugt durch ihre durchdachte Raumaufteilung und die attraktive Lage direkt am Campus Eggenberg, gegenüber der FH JOANNEUM. Die Wohnanlage ist Teil eines modernen Neubauprojekts mit viel Grünflächen und Nahversorgung vor der Haustüre.
Ein der Wohnung zugeordneter Tiefgaragenplatz ist bereits in der Miete inkludiert und sorgt für komfortables, sicheres Parken.

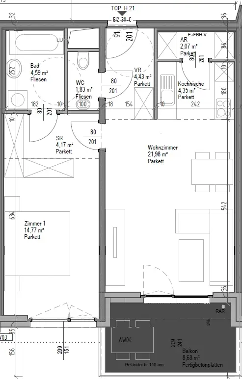
Raumaufteilung & Ausstattung

- Einladender Vorraum
- Separates WC mit Handwaschbecken
- Wohnküche mit möblierter Kochnische und praktischem Abstellraum für zusätzlichen Stauraum
- Zugang zum südseitig ausgerichteten Balkon (ca. 8,68 m²) – ideal zum Entspannen im Freien
- Separates Schlafzimmer mit direktem Zugang zum Badezimmer mit Badewanne, Handtuchtrockner und Waschmaschinenanschluss
- Der Wohnung zugeordneter Tiefgaragenplatz, bereits in der Miete inkludiert

Die klare Trennung von Wohnbereich und Schlafbereich sowie der großzügige Balkon machen die Wohnung besonders attraktiv für Singles und Paare.

Lage & Infrastruktur

Die Wohnung befindet sich im Bezirk Eggenberg, in unmittelbarer Nähe zur FH Joanneum und damit ideal für Studierende und Mitarbeiter:innen. Einkaufsmöglichkeiten wie Supermärkte ( SPAR und HOFER) sowie Fitnessstudios sind bequem zu Fuß erreichbar, ebenso das Sport- und Wellnessbad ?Auster“ für Freizeit und Erholung. Durch Straßenbahn- und Busverbindungen in der Umgebung gelangt man rasch in die Innenstadt und zum Hauptbahnhof. Parks und Grünflächen – insbesondere rund um Schloss Eggenberg – bieten zusätzliche Erholungsmöglichkeiten im Freien und erhöhen die Wohnqualität dieser Lage.
Das Landeskrankenhaus Graz Süd-West ist in 5 Fahrminuten erreichbar.

Die Bruttomiete setzt sich zusammen aus:
Hauptmietzins, Betriebskosten, Garagenmiete, Garagenbetriebskosten, Möbelmiete und Umsatzsteuer.
Heizkosten und Energiekosten sind nicht enthalten.

Mietbeginn:
ab Jänner

Mietdauer:
auf 5 Jahre befristet

Jetzt online anfragen oder telefonisch Kontakt aufnehmen – wir melden uns zeitnah mit Terminvorschlägen für eine Besichtigung.

Grundriss

Margit Pürrer

Ihr Ansprechpartner

Margit Pürrer

Immobilienmaklerin

Preisdetails

Gesamtmiete:
808,64 €
Nettomiete:
502,36 €
Betriebskosten netto:
119,99 €
Sonstige Kosten netto:
72,92 €
Umsatzsteuer:
80,14 €
Kaution:
2.430,00 €
Provision:
provisionsfrei

Fakten

Objektnummer:
141/84681
Objekttyp:
Wohnung
Wohnfläche:
58,19 m²
Balkon:
1
Balkonfläche:
7,92 m²
Zimmer:
2
Badezimmer:
1
Toilette:
1
Neubau:
Ja
Verfügbarkeit:
Verfügbar

Ausstattungen

Fahrstuhl
Abstellraum
Fernwärme
Zentralheizung

Energieeffizienz

HWB:
27,47 kWh/(m²*a)
HWB Klasse:
B
fGEE:
0,83
fGEE Klasse:
A