Inklusive Heizkosten I Flexible Büroeinheit in guter Lage

Büro zur Miete
8042 Graz-St. Peter

Beschreibung

Diese Büroeinheit bietet eine funktionale Raumstruktur mit mehreren Büroräumen sowie zusätzlichen Nutzungsmöglichkeiten und eignet sich ideal für Unternehmen mit Bedarf an kombinierten Arbeits- und Besprechungsflächen.

Durch die klare Raumaufteilung lassen sich unterschiedliche Arbeitsbereiche effizient organisieren, wodurch sich die Fläche für zahlreiche Branchen eignet.

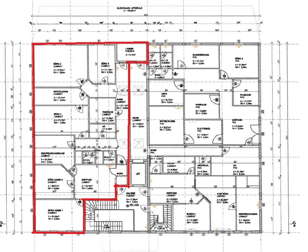
Raumaufteilung & Ausstattung

Die Bürofläche umfasst ca. 255 m² und teilt sich auf in:

- Empfangsbereich
- 5 Büroräumlichkeiten
- Besprechungszimmer
- zusätzlicher Raum mit ca. 15 m² zur indiviuellen Nutzung
- Teeküche
- Abstellraum
- WC-Anlagen für Damen und Herren
- Zugang zu einer Loggia (gemeinschaftliche Nutzung mit weiterer Einheit)

PARKEN:

Kosten für einen Parkplatz belaufen sich auf € 30,00 netto und sind ausreichend vorhanden.

Die Einheit befindet sich ebenfalls im 1. Obergeschoss (ohne Lift) und ist ab sofort verfügbar.

Lage & Infrastruktur

Die Lage in der Schmiedlstraße bietet ein funktionales Arbeitsumfeld innerhalb eines gewachsenen Unternehmensstandorts im Grazer Stadtgebiet. Die Mischung aus Gewerbe- und Bürostandorten sorgt für ein aktives wirtschaftliches Umfeld und bietet Vorteile für Unternehmen, die Wert auf gute Erreichbarkeit und kurze Wege legen.

Mitarbeiter profitieren von nahegelegenen Einkaufsmöglichkeiten und Gastronomieangeboten für den täglichen Bedarf sowie von einer guten Anbindung an das öffentliche Verkehrsnetz. Dadurch bleibt der Standort sowohl für innerstädtische Mitarbeiter als auch für Pendler gut erreichbar.

Gerne übermitteln wir Ihnen weitere Informationen oder vereinbaren einen persönlichen Besichtigungstermin. Wir freuen uns auf Ihre Anfrage.

Grundriss

Gerald Schneidhofer

Ihr Ansprechpartner

Gerald Schneidhofer

Immobilienmakler

Preisdetails

Gesamtmiete (exkl. USt.):
(exkl. Heizkosten)
2.783,68 €
Nettomiete:
2.273,68 €
Betriebskosten netto:
510,00 €
Heizkosten netto:
510,00 €
Umsatzsteuer:
658,74 €
Miete/m² netto:
8,92 €
Kaution:
11.860,00 €

Fakten

Objektnummer:
141/84971
Objekttyp:
Büro
Nutzfläche:
255 m²
Zimmer:
8
Toilette:
2
Verfügbarkeit:
Verfügbar

Ausstattungen

Abstellraum