Hofruhelage und Dachterrasse in der Neubaugasse

Wohnung zur Miete
1070 Wien

Bild 4
Bild 3
Bild 11
Bild 12
Bild 13
Bild 15
Bild 14
Bild 5
Bild 6
Bild 9
Bild 10
Bild 16
Bild 7
Bild 1
Bild 2
Bild 8

Beschreibung

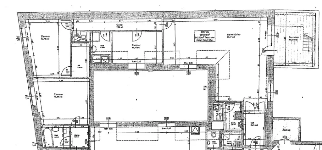
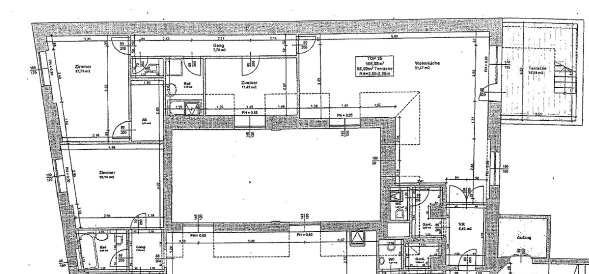
In dem in der Neubaugasse gelegenen Liegenschaft gelangt diese charmante 3-Zimmer-Wohnung zur Vermietung. Die Wohnung verfügt über knapp 109m², zuzüglich einer Dachterrasse mit 16,29m² und kann besonders durch die beliebte Lage überzeugen.
Ausstattung:
Boden:
Parkettboden, Fließen im Badezimmer
Küche:
Vollausgestattet mit Herdplatte, Backrohr, Geschirrspüler, Kühlschrank, Gefrierfach
Badezimmer:
Dusche und Badewanne, Waschbecken
Allgemeine Informationen:
DG mit Lift
Außenjalousien
Kellerabteil
Fahrradraum
Garage optional anmietbar
Heizungsart:
Gasetagenheizung
Lage:
Durch die zentrale Lage mit guter Infrastruktur befinden sich öffentliche Verkehrsmittel, Nahversorger sowie Einkaufsmöglichkeiten in unmittelbarer Nähe.
U-Bahn: U3 Volkstheater, U6 Burggasse-Stadthalle
Straßenbahn: 49,
Bus: 13A, 48A, N49
Energieausweis:
HWB: 114,2 kWh/m²a
Eckdaten und Kostenaufstellung:
Befristung: unbefristet
Mietbeginn: 01.05.2026
Kaution: 7.520€
Admin. Aufwand HV: 336,00€

Grundriss

Joanna Maciejasz

Ihr Ansprechpartner

Joanna Maciejasz

Immobilienmaklerin

Preisdetails

Gesamtmiete:
2.507,13 €
Nettomiete:
1.959,84 €
Betriebskosten netto:
319,37 €
Umsatzsteuer:
227,92 €
Kaution:
7.520,00 €

Fakten

Objektnummer:
141/85315
Objekttyp:
Wohnung
Wohnfläche:
108,88 m²
Zimmer:
3
Badezimmer:
1
Toilette:
2
Baujahr:
1912
Verfügbarkeit:
Verfügbar

Ausstattungen

Fahrstuhl
Abstellraum
Etagenheizung

Energieeffizienz

HWB:
114,2 kWh/(m²*a)
HWB Klasse:
D