Helle fabelhafte 3-Zimmer-Wohnung im Dachgeschoss! Nähe Albert Schweitzer Klinik!!

Wohnung zur Miete
8020 Graz

Wohnzimmer
Küche
Wohnbereich
Zimmer 1
Vorraum
Badezimmer
Innenhof
Fahrradabstellplatz
T19

Beschreibung

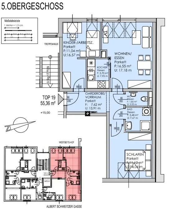
Diese helle und gut geschnittene 3-Zimmerwohnung mit ca. 55,36 m² Wohnfläche überzeugt durch eine durchdachte Raumaufteilung mit zentral begehbaren Zimmern sowie hofseitiger Ausrichtung

Raumaufteilung:

- Vorraum
- Wohn/Esszimmer
- abgetrennte, vollausgestattete Küche
- 2 Schlafzimmer
- Badezimmer mit Dusche und Waschmaschinenanschluss
- separates WC

Die Bruttomiete setzt sich zusammen aus:
Hauptmietzins, Betriebskosten und Umsatzsteuer.
Heizkosten und Energiekosten sind nicht enthalten.

Lage und Infrastruktur:
Die Wohnung befindet sich in einer gut angebundenen und dennoch ruhigen Wohnlage in Graz mit sehr guter Infrastruktur. Einkaufsmöglichkeiten für den täglichen Bedarf, Schulen sowie Albert Schweitzer Klinik befinden sich in unmittelbarer Nähe.
Öffentliche Verkehrsmittel sind gut erreichbar und bieten eine schnelle Anbindung in die Grazer Innenstadt.Nahegelegene Grünflächen und Parks laden zu Freizeitaktivitäten und Erholung ein.

Mietbeginn:
ab Mai 2026

Mietdauer:
unbefristet

Die Wohnung derzeit noch vermietet ist, sind Besichtigungen nach vorheriger Terminvereinbarung in Absprache mit dem aktuellen Mieter möglich.

Jetzt online anfragen oder anrufen – wir melden uns zeitnah mit Terminvorschlägen.

Weitere Immobilien finden Sie auf unserer a href="https://rustler.eu/"Homepagea_
Arber Licaj

Ihr Ansprechpartner

Arber Licaj

Immobilienmakler

Preisdetails

Gesamtmiete:
693,01 €
Nettomiete:
459,49 €
Betriebskosten netto:
170,52 €
Umsatzsteuer:
63,00 €
Kaution:
2.080,00 €
Provision:
provisionsfrei

Fakten

Objektnummer:
141/85062
Objekttyp:
Wohnung
Wohnfläche:
55,36 m²
Zimmer:
3
Badezimmer:
1
Toilette:
1
Verfügbarkeit:
Verfügbar

Ausstattungen

Fahrstuhl
Fernwärme
Zentralheizung

Energieeffizienz

HWB:
31,3 kWh/(m²*a)
HWB Klasse:
B