Helle 4-Zimmer Wohnung mit Terrasse

Wohnung zur Miete
2344 Maria Enzersdorf

Terrasse
20260318_133924_3
Image00038
SZ
20260318_134142_3
Image00040

Beschreibung

In begehrter Ruhelage von Maria Enzersdorf gelangt diese großzügige und lichtdurchflutete 4-Zimmer-Wohnung zur Vermietung.

Die Immobilie überzeugt durch ihre sonnige Ausrichtung, durchdachte Raumaufteilung - ideal für Familien oder anspruchsvolle Paare.

Highlights der Wohnung:

-


4 gut geschnittene Zimmer



- Helle, freundliche Wohnräume dank großer Fensterflächen



- Sonnige Terrasse
-


Ruhelage

-
2 zugeordnete Parkplätze



- Hauszentralheizung für angenehmen Wohnkomfort
- Klimaanlage im Wohnzimmer + Schlafzimmer

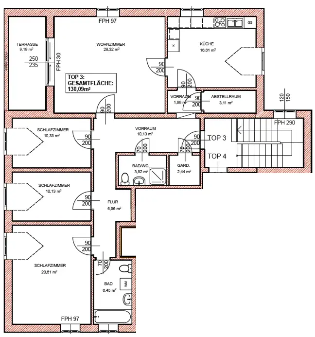
Raumaufteilung: Die Wohnung bietet einen großzügigen Wohn- und Essbereich mit direktem Zugang zur Terrasse. Drei weitere Zimmer eignen sich ideal als Schlafzimmer, Kinderzimmer oder Homeoffice. Eine separate Küche sowie ein Badezimmer und ein zusätzliches WC runden das Raumangebot ab.


Besonderer Hinweis zur Ausstattung: Bei Auswahl eines neuen Bodenbelags (z. B. Parkett oder Fliesen) durch den Mieter übernimmt der
Eigentümer die Kosten für die fachgerechte Verlegung sowie sämtliche damit verbundenen Arbeitsleistungen.
Die Kosten für das Material trägt der Mieter


Lage:
Die Immobilie befindet sich in einer ruhigen Wohngegend mit viel Grün und hoher Lebensqualität. Einkaufsmöglichkeiten, Schulen, Kindergärten sowie öffentliche Verkehrsanbindungen sind in wenigen Minuten erreichbar. Die Nähe zu Wien macht den Standort besonders attraktiv.


Sonstiges:
Die Kombination aus ruhiger Lage, sonniger Ausrichtung und praktischer Ausstattung macht diese Wohnung zu einer seltenen Gelegenheit in Maria Enzersdorf.

Grundriss

Petra Merkader

Ihr Ansprechpartner

Petra Merkader

Immobilienmaklerin

Preisdetails

Gesamtmiete:
2.456,60 €
Nettomiete:
1.990,00 €
Betriebskosten netto:
243,27 €
Umsatzsteuer:
223,33 €
Kaution:
7.500,00 €
Provision:
provisionsfrei

Fakten

Objektnummer:
141/85577
Objekttyp:
Wohnung
Wohnfläche:
131 m²
Zimmer:
4
Badezimmer:
2
Toilette:
2
Verfügbarkeit:
Verfügbar

Ausstattungen

Abstellraum
Zentralheizung

Energieeffizienz

HWB:
90 kWh/(m²*a)
HWB Klasse:
C
fGEE:
1,35
fGEE Klasse:
C