HELL & FREUNDLICH | 2-Zimmerwohnung mit gemütlicher Loggia!

Wohnung zur Miete
8020 Graz

IMG_3796
IMG_3789
IMG_3793
IMG_3791
IMG_3798
IMG_3799

Beschreibung

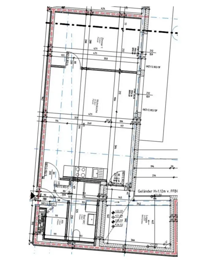
Diese ca. 61,44 m² große 3-Zimmerwohnung im 5ten Stockwerk gliedert sich in folgende Räumlichkeiten:

- Vorraum
- ein Wohnzimmer mit Küchenzeile und Zugang zur Loggia
- zwei Schlafzimmer
- ein Badezimmer Wanne
- separate Toilette
- Loggia

Ein Kellerabteil ist der Wohnung zugeteilt und im Mietpreis inkludiert.

Die Bruttomiete setzt sich zusammen aus:
Hauptmietzins, Betriebskosten und Umsatzsteuer. Heizkosten und Energiekosten sind nicht enthalten.

Lage und Infrastruktur:
In unmittelbarer Nähe finden Sie zahlreiche Einkaufsmöglichkeiten, darunter Spar, Interspar sowie das Einkaufszentrum Citypark, die eine bequeme Versorgung des täglichen Bedarfs ermöglichen. Familien profitieren von der Nähe zu Schulen und Bildungseinrichtungen. Zudem zeichnet sich die Lage durch eine exzellente Verkehrsanbindung aus – der Grazer Hauptbahnhof ist schnell erreichbar und bietet eine optimale Anbindung mit den öffentlichen Verkehrsmitteln. Der nahgelegene Oeverseepark bietet sich zur Erholung an, während Sportbegeisterte eine Kletterhalle sowie den Bezirkssportplatz gegenüber vorfinden. Abgerundet wird das Angebot durch verschiedene Restaurants und Cafés, die zu kulinarischen Entdeckungen einladen.

Mietbeginn:
ab sofort

Mietdauer:
unbefristet


Weitere Immobilienangebote finden Sie unter www.rustler.eu/immobiliensuche

Grundriss

Arber Licaj

Ihr Ansprechpartner

Arber Licaj

Immobilienmakler

Preisdetails

Gesamtmiete:
775,82 €
Betriebskosten netto:
140,86 €
Umsatzsteuer:
72,57 €
Kaution:
2.327,46 €
Provision:
provisionsfrei

Fakten

Objektnummer:
141/83343
Objekttyp:
Wohnung
Wohnfläche:
61,44 m²
Loggia:
1
Loggia Fläche:
10,21 m²
Zimmer:
2
Badezimmer:
1
Toilette:
1
Verfügbarkeit:
Verfügbar

Ausstattungen

Fahrstuhl
Abstellraum
Fernwärme
Zentralheizung

Energieeffizienz

HWB:
21,1 kWh/(m²*a)
HWB Klasse:
A