GERÄUMIG & HELL | Unbefristete 3-Zimmerwohnung

Wohnung zur Miete
8010 Graz

Vorraum
Vorraum (1)
Wohnbereich
Wohnzimmer
Zimmer 1
Zimmer 2
Abstellraum
Badezimmer

Beschreibung

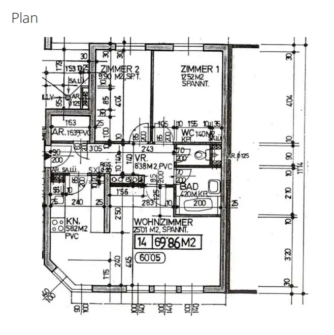
Diese ca. 77,91 m² große 3-Zimmerwohnung gliedert sich in folgende Räumlichkeiten:

- Vorraum
- Wohnzimmer mit Küchennische
- 2 Schlafzimmer
- Badezimmer
- separates WC
- Abstellraum
-Stellplatz inkludiert


Diese Wohnung wird ohne Kücheneinrichtung vermietet.

Die Bruttomiete setzt sich zusammen aus:
Hauptmietzins, Betriebskosten, Heizkosten und Umsatzsteuer.
Energiekosten sind nicht enthalten.

Lage und Infrastruktur:
Die Wohnung befindet sich in zentraler Lage in Graz mit sehr guter Infrastruktur. Öffentliche Verkehrsmittel (Bus,Straßenbahn,Bahnhof) sind in wenigen Gehminuten erreichbar. Nahversorgung wie Supermarkt, Bäckerei, Apotheke und Bank liegt in unmittelbarer Nähe. Schulen, Kindergarten und Universität sind ebenfalls gut erreichbar. Insgesamt eine sehr gut angebundene und alltagsfreundliche Wohnlage.

Mietbeginn:
ab sofort

Mietdauer:
unbefristet

Jetzt online anfragen oder anrufen – wir melden uns zeitnah mit Terminvorschlägen.

Weitere Immobilien finden Sie auf unserer Homepage_

Grundriss

Arber Licaj

Ihr Ansprechpartner

Arber Licaj

Immobilienmakler

Preisdetails

Gesamtmiete:
(exkl. Heizkosten)
949,55 €
Nettomiete:
471,10 €
Betriebskosten netto:
301,82 €
Umsatzsteuer:
93,85 €
Heizkosten brutto:
99,34 €
Kaution:
2.848,65 €
Provision:
provisionsfrei

Fakten

Objektnummer:
141/84903
Objekttyp:
Wohnung
Wohnfläche:
77,91 m²
Zimmer:
3
Badezimmer:
1
Toilette:
1
Baujahr:
1996
Verfügbarkeit:
Verfügbar

Ausstattungen

Fahrstuhl
Abstellraum
Fernwärme
Zentralheizung

Energieeffizienz

HWB:
75 kWh/(m²*a)
HWB Klasse:
C
fGEE:
1,75
fGEE Klasse:
C