Gemütliche und moderne 2-Zimmer-Wohnung mit Balkon

Wohnung zur Miete
1230 Wien

20250218_103057
20250218_103234
20250218_103144
20250218_103245
20250218_103125
20250218_103111

Beschreibung

Bei den angeführten Bildern handelt es sich um Beispielfotos einer Wohnung mit gleichem Grundriss im Haus!

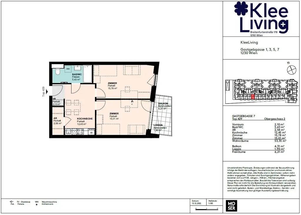
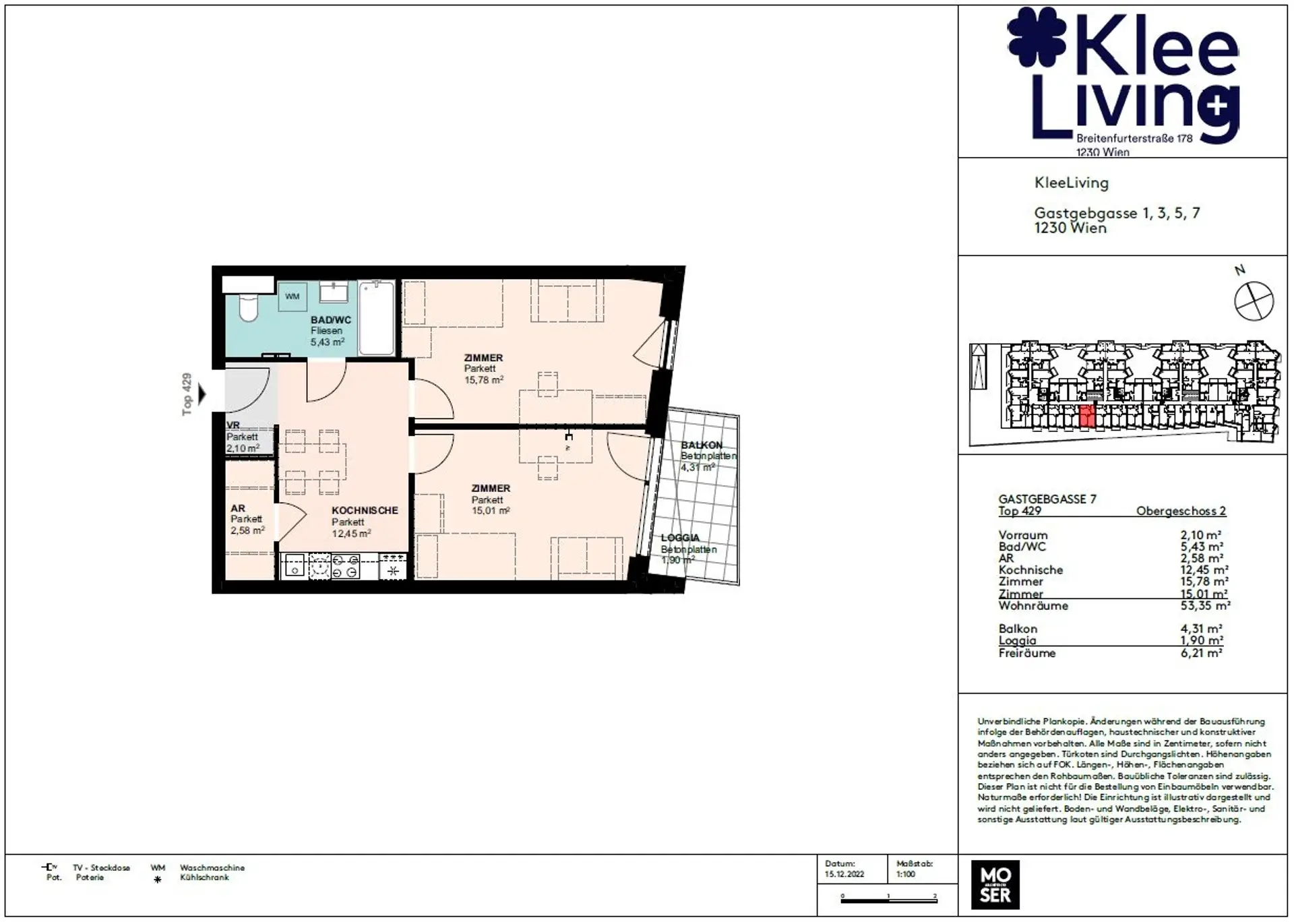
In dem nahe der Breitenfurter Straße gelegenen Neubau gelangt diese charmante 2-Zimmer-Wohnung zur Vermietung. Die Wohnung verfügt über 53m² zuzüglich einem Balkon mit 6,21m² und kann besonders durch die moderne Ausstattung überzeugen.
Ausstattung:
Boden:
Parkettboden, Fließen im Badezimmer
Küche:
Vollausgestattet mit Herdplatte, Backrohr, Geschirrspüler, Kühlschrank, Gefrierfach
Badezimmer:
Badewanne, Waschmaschinenanschluss, Waschbecken, WC
Allgemeine Informationen:
• 2. Stock mit Lift
• Außenjalousien
• Kein Kellerabteil
Heizungsart:
Zentralheizung (Deckenheizung / Kühlung)
Energieausweis:
HWB: 20,1 kWh/m²a
Eckdaten und Kostenaufstellung:
Befristung: 5 Jahre
Mietbeginn: sofort
Kaution: 3 Bruttomonatsmieten
Admin. Aufwand HV: 300,00€

Grundriss

Lena Doll

Ihr Ansprechpartner

Lena Doll

Immobilienmaklerin

Preisdetails

Gesamtmiete:
915,00 €
Nettomiete:
721,32 €
Betriebskosten netto:
110,50 €
Umsatzsteuer:
83,18 €
Kaution:
2.650,00 €

Fakten

Objektnummer:
141/84363
Objekttyp:
Wohnung
Wohnfläche:
53,35 m²
Zimmer:
2
Badezimmer:
1
Toilette:
1
Baujahr:
2021
Neubau:
Ja
Verfügbarkeit:
Verfügbar

Ausstattungen

Fahrstuhl
Abstellraum
Zentralheizung

Energieeffizienz

HWB:
20,1 kWh/(m²*a)
HWB Klasse:
A