Erstklassige Dachgeschosswohnung in Bestlage Hietzings!

Wohnung zur Miete
1130 Wien

Wohnzimmer
Küche
Badezimmer 1
Terrasse
Badezimmer
Blick
Schlafzimmer
Wohnzimmer 2
Schlafzimmer 1
Terrasse 1
Vorraum
Vorraum 1
Hausansicht
WC
Wohnzimmer 1

Beschreibung

Zur Vermietung gelangt im Dachgeschoss eines repräsentativen Neubaus ab sofort eine helle Neubaumietwohnung mit Terrasse, Wohnküche und Schlafzimmer in begehrter Lage Hietzings!

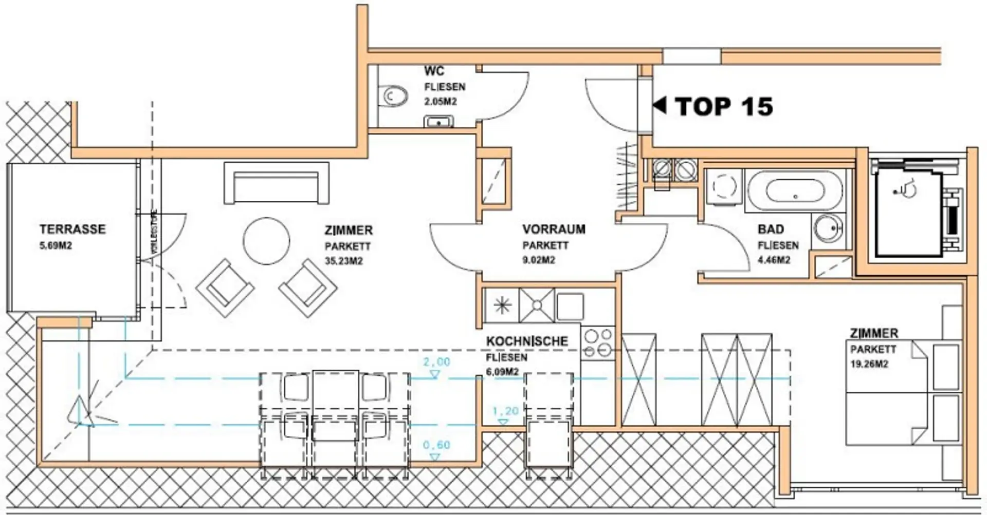
Diese moderne und klimatisierte Neubauwohnung bietet auf rd. 76m² eine großzügige Wohnküche mit Terrasse und Küchenzeile inkl. Geräten, eine separate Toilette mit Handwaschbecken, getrennt begehbares Schlafzimmer, ein Badezimmer mit Wannenbad und Handwaschbecken und Handtuchhalter/Heizkörper, Kellerabteil

Geheizt wird die Wohnung mittels Hauszentralheizung.


Ausstattung:

- Parkett/Fliesenböden
- Hochwertige Kompletteinbaukücke
- Terrasse: Holzimitat
- Video-Gegensprechanlage
- Kühlung
- Dachflächenfenster (automatische Beschattungsanlage)
- Lift


Sehr gute Verkehrsanbindung durch die Ubahnlinie U4 "Braunschweiggasse", Nahversorgung durch naheliegende Supermärkte und Gasthäuser.


Resümee: Die Wohnung kann treffend mit "zeitgemäße Neubauwohnung" kurz beschrieben werden. 2 Zimmer, Terrasse, Küchenzeile und gut Angebunden - das Objekt der Begierde.


Mietbeginn: sofort
Mietdauer: 5 Jahre befristet
admin. Aufwand HV: 336,00€

Grundriss

Josef Strozer

Ihr Ansprechpartner

Josef Strozer

Immobilienmakler

Preisdetails

Gesamtmiete:
1.725,00 €
Nettomiete:
1.379,50 €
Betriebskosten netto:
188,68 €
Umsatzsteuer:
156,82 €
Kaution:
5.175,00 €

Fakten

Objektnummer:
141/74027
Objekttyp:
Wohnung
Wohnfläche:
76,11 m²
Zimmer:
2
Badezimmer:
1
Toilette:
1
Baujahr:
2011
Neubau:
Ja
Verfügbarkeit:
Verfügbar

Ausstattungen

Barrierefrei
Fahrstuhl
Zentralheizung

Energieeffizienz

HWB:
52,7 kWh/(m²*a)
HWB Klasse:
C