ERSTBEZUG in sanierten Altau | Sonnige 3-Zimmerwohnung an der U1

Wohnung zum Kauf
1100 Wien

IMG_2774
IMG_2763
IMG_2775
IMG_2758
IMG_2756
IMG_2753
IMG_2760
IMG_2765
IMG_2752
IMG_2768
IMG_2772
IMG_2776
IMG_2779
IMG_2780
IMG_2781
IMG_2784
IMG_2786
IMG_2787
IMG_2788
IMG_2790
Lageplan

Beschreibung

Objektbeschreibung

In einer ruhigen Seitengasse, und doch mitten im Leben, erwartet Sie ein liebevoll saniertes Gründerzeitwohnhaus mit Geschichte und Charakter. Die Liegenschaft in der Senefeldergasse wurde umfassend saniert und überzeugt durch stilvolle Details und moderner Infrastruktur. Im neu ausgebauten Dachgeschoss befindet sich das absolute Highlight - 4 Maisonettewohnungen mit einladenden Terrassenflächen, sowie eine kompakte moderne 3-Zimmerwohnung.


Das Gebäude wurde von Grund auf saniert - verfügt nun über neu geschaffene Kellerabteile, Aufzug, ein einladendes Stiegenhaus sowie einer wunderschönen Hausfassade. Dabei wurde großer Wert darauf gelegt, den authentischen Altbaucharme zu bewahren und mit zeitgemäßer Wohnqualität zu verbinden.

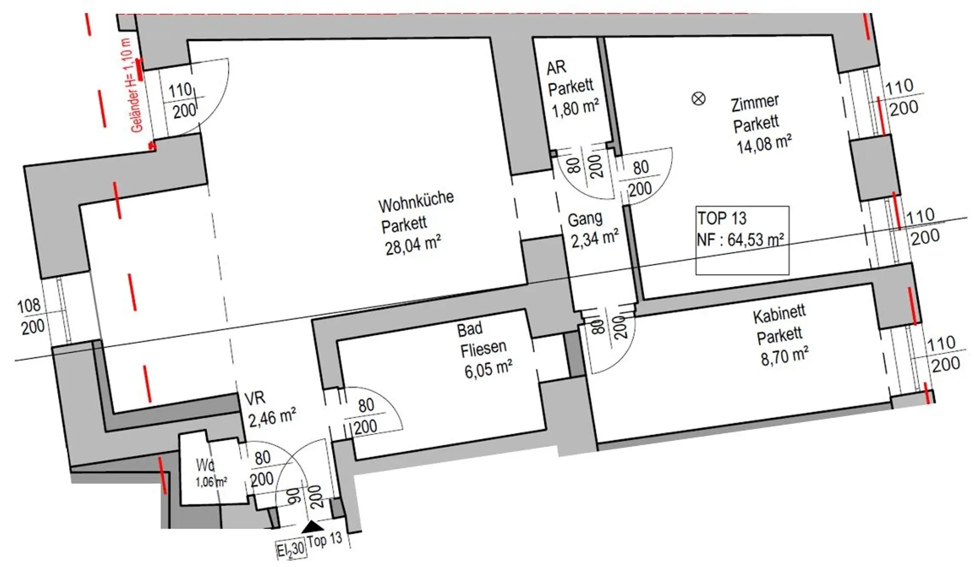
Die Wohnung Top 13 verfügt über 64,53 m² und teilt sich wie folgt auf:

- Vorraum
- Wohnküche
- Zimmer
- Kabinett
- Gang
- Abstellraum
- Bad
- WC


Zum Verkauf stehen 13 sanierte Altbauwohnungen in den Regelgeschossen, sowie 5 neu geschaffenen Dachgeschosswohnungen. Exklusive Wohneinheiten mit Größen von ca. 40m² bis 105m² und 2 bis 4 Zimmern - jede einzelne mit einem klaren Fokus auf Qualität, Design und Wohngefühl.


Ausstattung

Alle Wohnungen befinden sich im Erstbezug. Die Ausstattung lässt keine Wünsche offen:

- Wärmeversorgung durch Fernwärme
- komfortables Heizen durch Fußbodenheizung
- elektrischer Wandheizkörper in den Badezimmern
- exklusive Parkettböden in allen Wohn- und Schlafräumen
- großformatige Fliesen in den Sanitärbereichen
- Badewannen oder bodenbündige Duschen mit
- qualitativ hochwertigen Armaturen
- massive Wohnungseingangstüren mit Einbruchsschutz
- hochwertige Fenster und Fenstertüren
- Kabel-TV sowie Internet-Anschlüsse
- Fahrradabstellraum
- Großzügige Grundrisse mit viel Licht und wohlfühlender Raumhöhe


Lage

Die Senefeldergasse ist eine beruhigte Seitengasse inmitten des traditionellen Favoritenviertels. Die Umgebung bietet eine ausgezeichnete Mischung aus urbanem Lebensgefühl und Naherholung: In Gehweite befinden sich zahlreiche Einkaufsmöglichkeiten, gemütliche Cafés, Restaurants, Schulen und Kindergärten. Die nahegelegene Favoritenstraße bietet eine Vielzahl an Geschäften und eine direkte Anbindung an das öffentliche Verkehrsnetz - die U1-Station "Reumannplatz" sowie mehrere Straßenbahn- und Buslinien sind rasch fußläufig erreichbar. In wenigen Minuten gelangt man so sowohl in die Wiener Innenstadt als auch zum Erholungsgebiet Wienerberg und Oberlaa.

Grundriss

Timo Kohlweiss

Ihr Ansprechpartner

Timo Kohlweiss

Immobilienmakler

Preisdetails

Kaufpreis:
319.000,00 €
Kaufpreis/m²
4.943,44 €
Provision:
3%

Fakten

Objektnummer:
141/84233
Objekttyp:
Wohnung
Wohnfläche:
64,53 m²
Zimmer:
2
Badezimmer:
1
Toilette:
1
Altbau:
Ja
Verfügbarkeit:
Verfügbar

Ausstattungen

Barrierefrei
Fahrstuhl
Abstellraum
Fernwärme

Energieeffizienz

HWB:
54,35 kWh/(m²*a)
HWB Klasse:
C
fGEE:
0,9
fGEE Klasse:
B