Anleger aufgepasst: Geschäftslokal mit über 5 % Rendite in 1220 Wien!

Einzelhandel zum Kauf
1220 Wien

IMG_2208
IMG_2212
IMG_2214
IMG_2215
IMG_2217
IMG_2218

Beschreibung

Zum Verkauf gelangt ein kompaktes, unbefristet vermietetes Geschäftslokal im 22. Wiener Gemeindebezirk.
Das Objekt bietet eine ideale Gelegenheit für Anleger, die ein kleines, risikoarmes Investment mit sofortigen Mieteinnahmen suchen.

Objektdetails
Adresse: Moissigasse 8, 1220 Wien
Objektart: Geschäftslokal
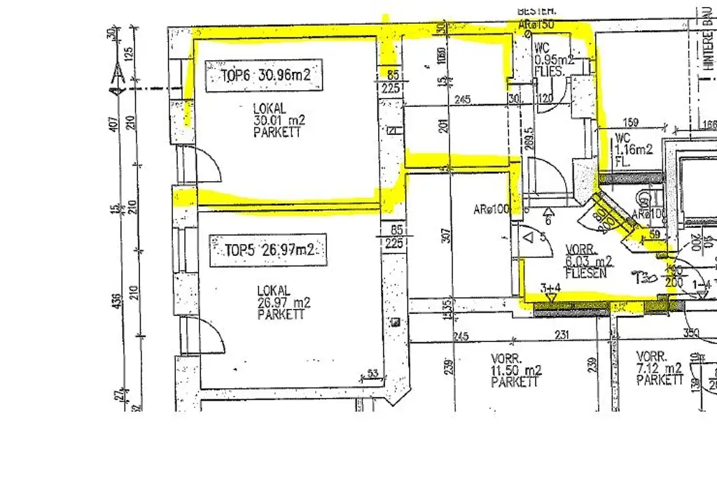
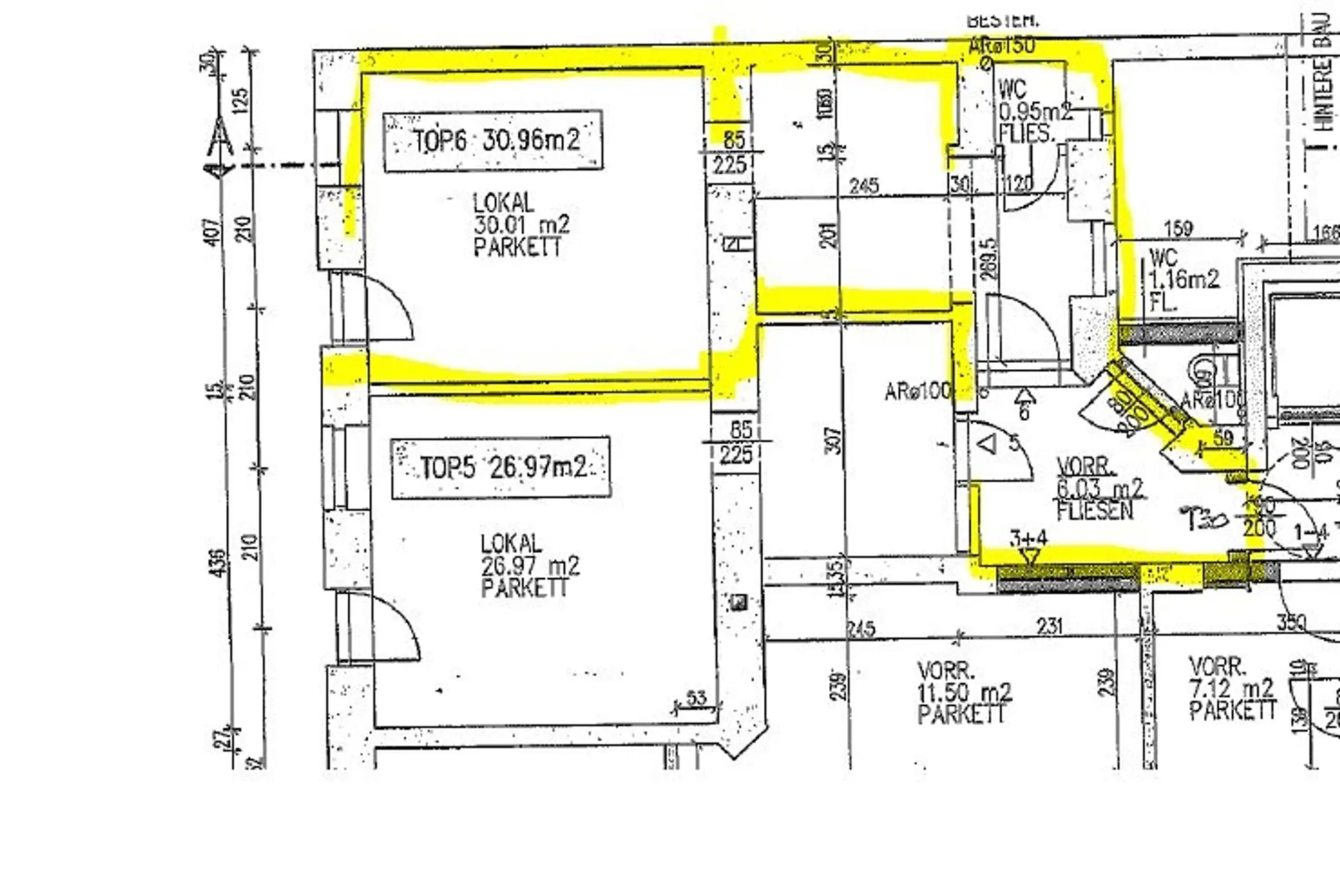
Nutzfläche: ca. 35 m²
Kaufpreis: € 52.000,-
Mietverhältnis: Unbefristeter Mietvertrag
Aktuelle Nutzung: Beisl / Café
Zustand: gepflegt, gut nutzbare Raumstruktur

Monatliche Einnahmen & Kosten
Hauptmietzins: € 222,63
Betriebskosten: € 56,88
Betriebskosten Wasser: € 12,67
Betriebskosten Heizung: € 29,55
Umsatzsteuer: € 64,35
Bruttomiete gesamt: € 386,08 / Monat


Renditeberechnung (nur Hauptmietzins)
-) Jahres-Hauptmietzins:
€ 222,63 × 12 = € 2.671,56

-) Brutto-Rendite:
€ 2.671,56 / € 52.000 = ca. 5,14 %

Damit bietet das Objekt eine attraktive Einstiegsrendite bei einem sehr niedrigen Kaufpreis – ideal für Anleger, die eine kleine, aber stabile Immobilienanlage suchen.

Beschreibung
Das rund 35 m² große Lokal befindet sich im Erdgeschoss eines gepflegten Gebäudes und ist aktuell als kleines Beisl bzw. Café in Betrieb. Der unbefristete Mietvertrag sorgt für eine langfristige, planbare Einnahmesituation. Die kompakte Größe, die einfache Struktur und die solide Vermietung machen das Objekt zu einer äußerst unkomplizierten Anlageimmobilie.

Lage
Die Moissigasse liegt im beliebten Bezirk Donaustadt, einem dynamisch wachsenden Wohngebiet mit guter Infrastruktur und Nahversorgung. Die Lage bietet eine stabile Frequenz sowie eine gute Erreichbarkeit sowohl öffentlich als auch mit dem Auto.

Grundriss

Paula Polaniecki

Ihr Ansprechpartner

Paula Polaniecki

Immobilienmaklerin

Preisdetails

Kaufpreis:
52.000,00 €
Kaufpreis/m²
1.485,71 €
Provision:
3%

Fakten

Objektnummer:
141/84647
Objekttyp:
Einzelhandel
Nutzfläche:
35 m²
Baujahr:
1900
Verfügbarkeit:
Verfügbar

Energieeffizienz

HWB:
165,16 kWh/(m²*a)
HWB Klasse:
E
fGEE:
5,4
fGEE Klasse:
G