Altbaurenaissance mit Dachgeschossausbau- Nähe Kutschkermarkt

Projekt / Sonstige
1180 Wien

Stagingbeispiel
Stagingbeispiel
Fotos außen
Stagingbeispiel
Stagingbeispiel
Stagingbeispiel
Straßenansicht
Rendering Frontansic

Beschreibung

,,Der Benediktiner‘‘ – Stilvoll Wohnen im Herzen von Währing

In der begehrten Wohngegend des 18. Bezirks, in der Abt-Karl-Gasse 19 / Ecke Schulgasse 51, präsentiert sich das revitalisierte Wohnhaus „"Der Benediktiner“ – eine gelungene Verbindung aus klassischem Wiener Altbau und modernem Wohnkomfort. Die geplante Fertigstellung ist das 1. Quartal 2026.

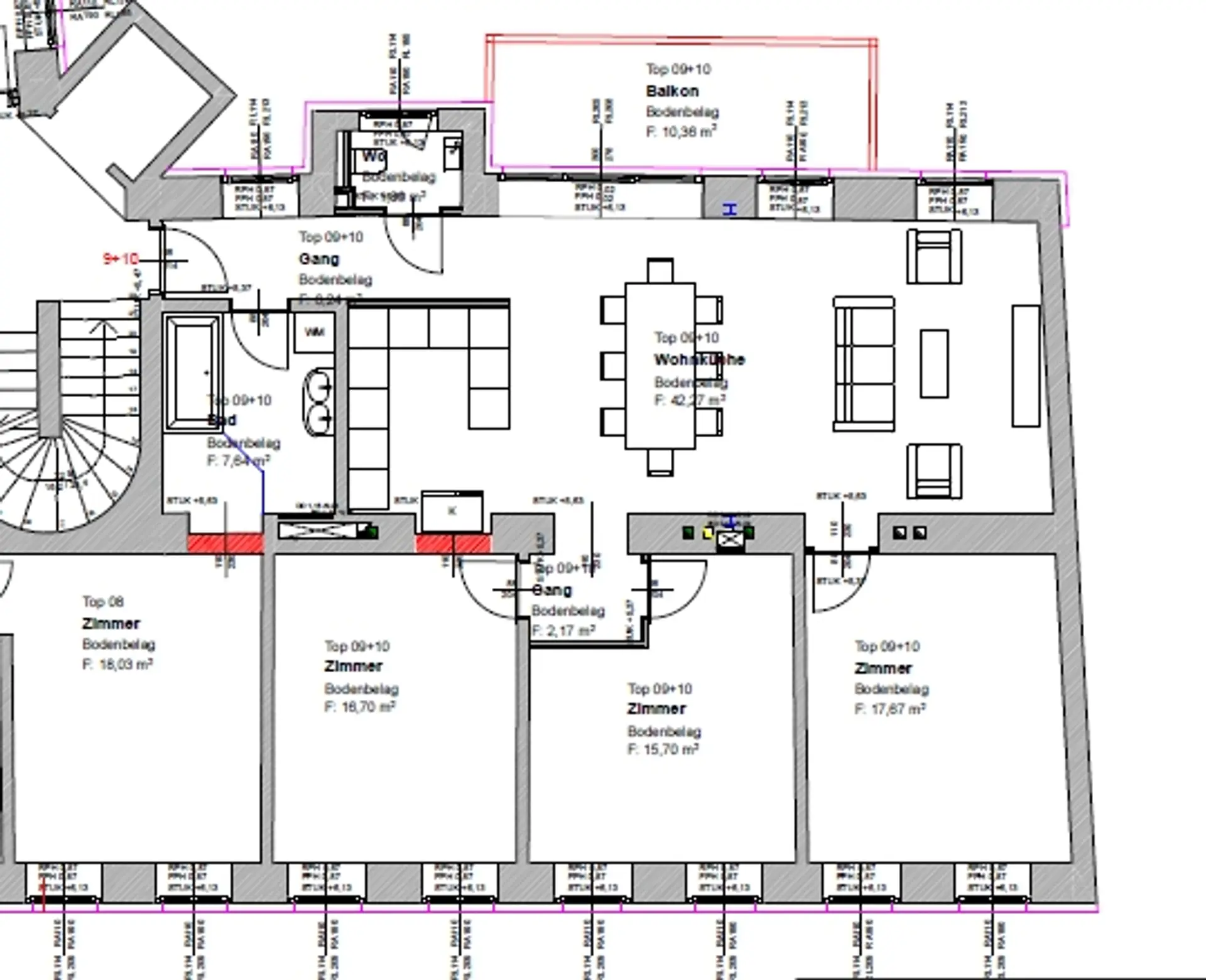
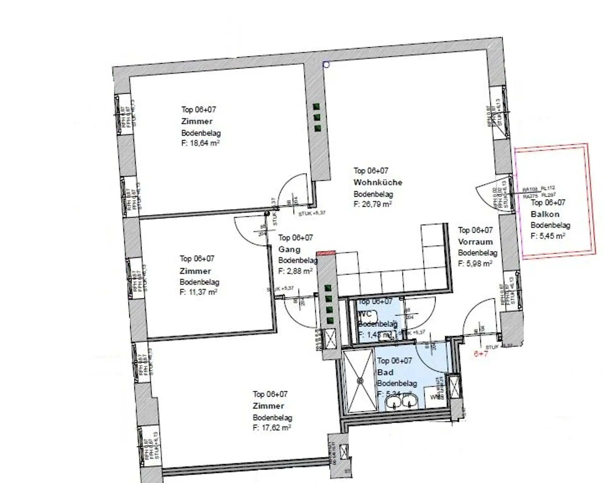
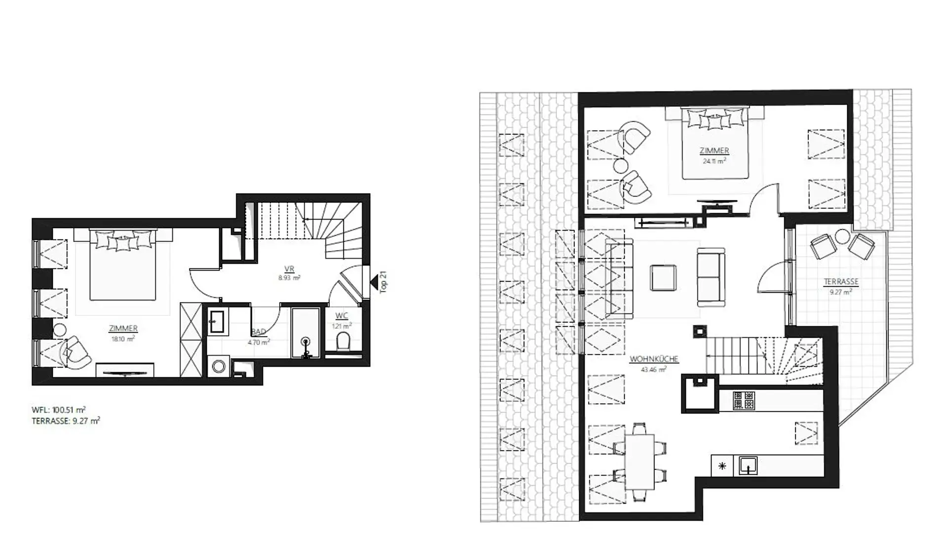
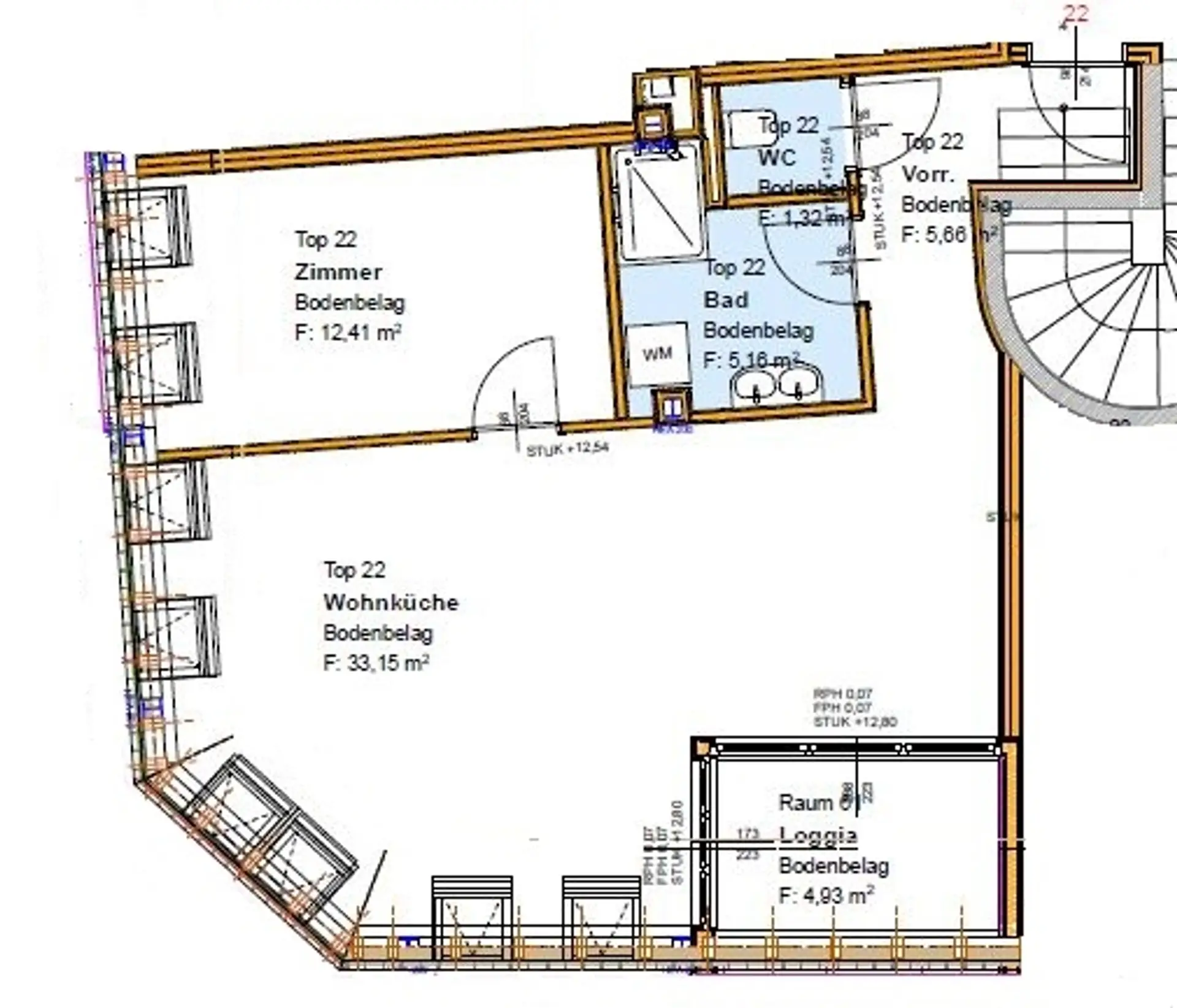
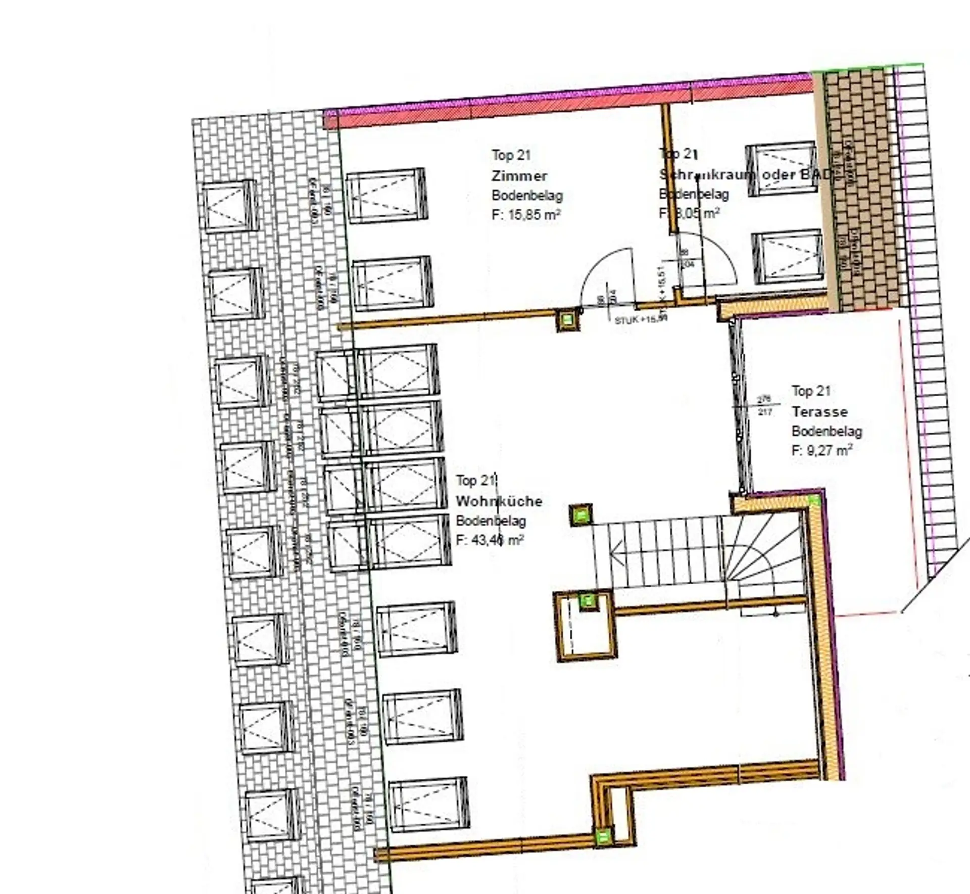
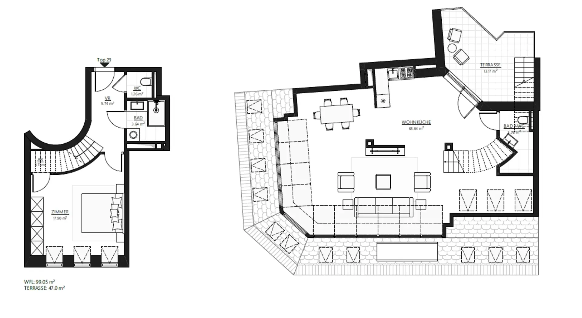
Im neu ausgebauten Dachgeschoss befinden sich insgesamt 6 exklusive Wohnungen, davon 3 stilvolle Maisonettwohnungen. Besonders hervorzuheben ist die Top 23, die mit einer großzügigen Dachterrasse und einem atemberaubenden 360-Grad-Blick über Wien beeindruckt – ein einzigartiges Wohngefühl hoch über den Dächern der Stadt.

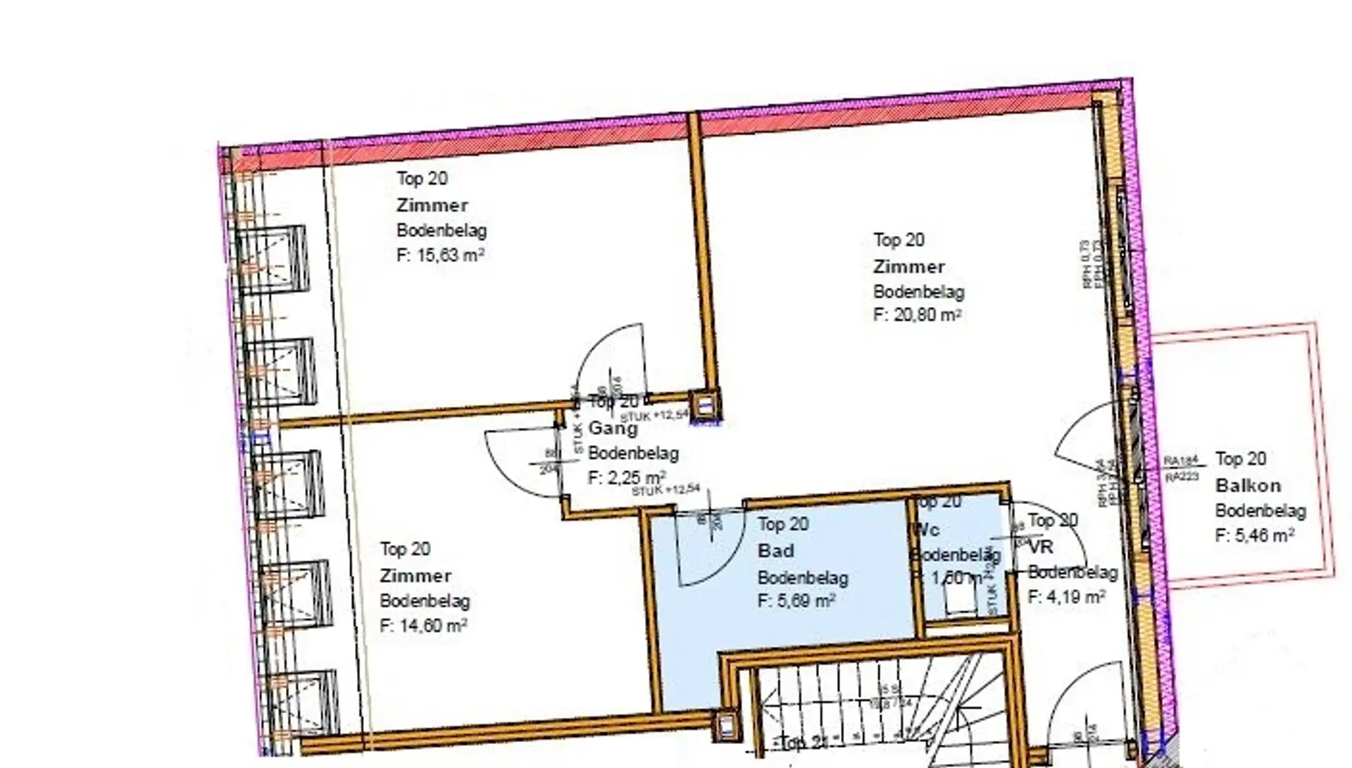
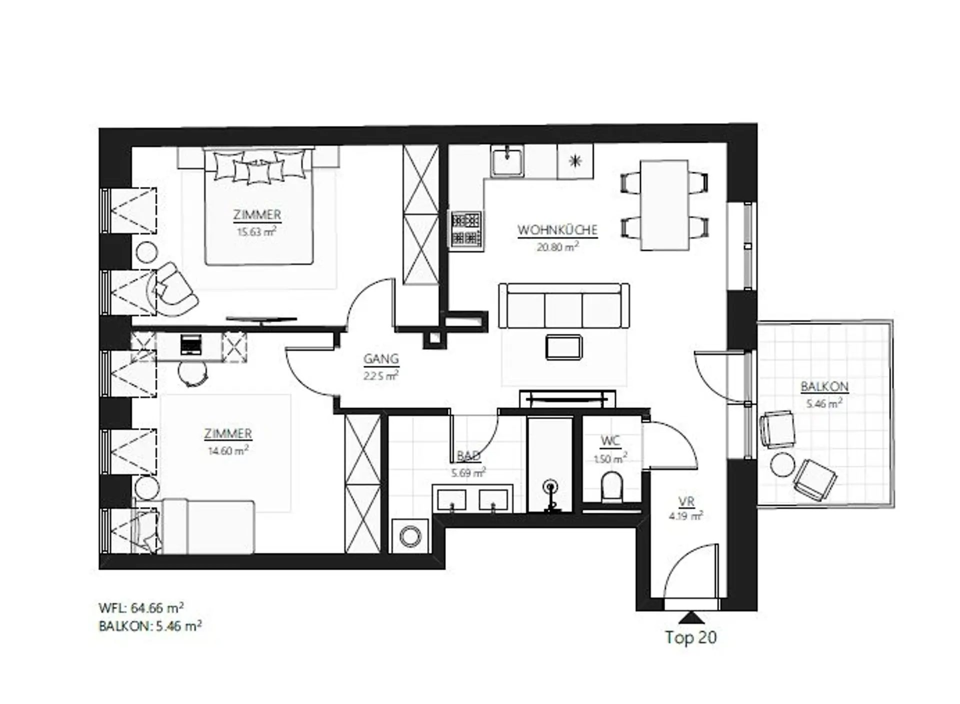
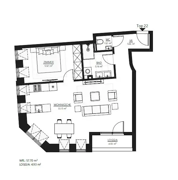
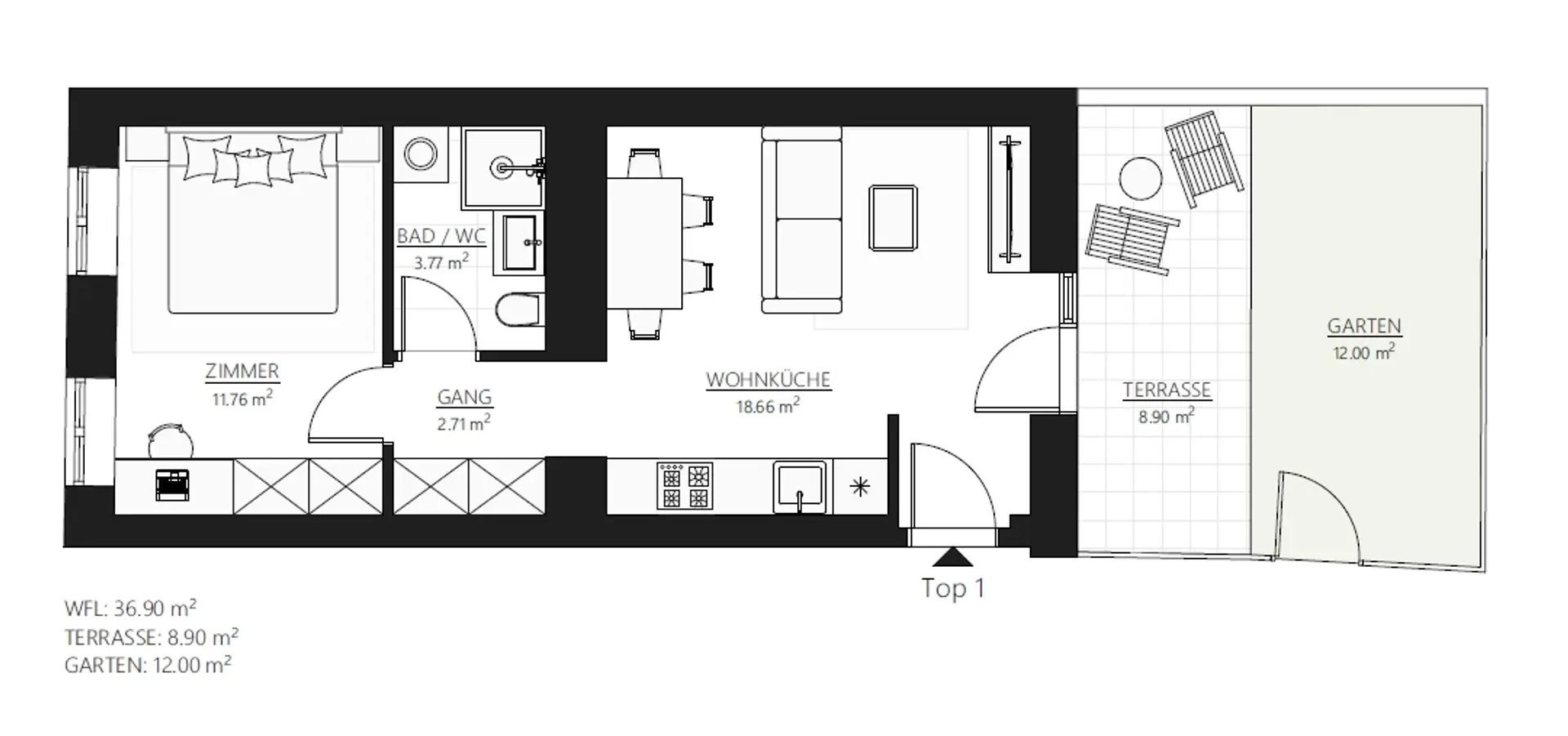
Das liebevoll generalsanierte Gründerzeithaus wurde umfassend modernisiert und erstrahlt in neuem Glanz. Das bestehende Gebäude umfasst 16 hochwertige Wohnungen mit Größen zwischen ca. 37 m² und 131 m², viele davon mit Freiflächen wie Eigengärten, Balkonen, Terrassen oder Loggien.

Ausstattung und Architektur
Das Objekt überzeugt durch eine hochwertige Bauweise und ein stimmiges Ausstattungskonzept, das Altbauflair mit zeitgemäßen Standards verbindet:

Edle Echtholzparkettböden in den Wohnräumen
Fußbodenheizung mittels moderner Luft-Wärmepumpe
Großformatige Feinsteinzeugfliesen in Bad und WC
Hochwertige Sanitärausstattung und Design-Armaturen
Kunststofffenster mit 3-fach-Verglasung,
Bei den Dachflächenfenstern der Wohnungen werden Außenrollos mit elektrischem Antrieb hergestellt
Kellerabteile, Fahrrad- und Kinderwagenräume im Haus

Helle, durchdachte Grundrisse, großzügige Freiflächen und ein harmonisches Design sorgen für ein exklusives Wohngefühl mit zeitloser Eleganz.

Lage und Umgebung
Die Liegenschaft befindet sich im beliebten Cottageviertel von Währing – einer der begehrtesten Wohnlagen Wiens. Die Umgebung bietet eine hervorragende Infrastruktur mit zahlreichen Einkaufsmöglichkeiten, dem Kutschkermarkt, gemütlichen Cafés, Schulen und Gesundheitseinrichtungen in unmittelbarer Nähe.
Auch die öffentliche Verkehrsanbindung ist ausgezeichnet:
Straßenbahnlinien 40, 41 und 42
U-Bahn-Linie U6 (Station Währinger Straße/Volksoper) in wenigen Minuten erreichbar

Kontaktieren Sie uns noch heute für weitere Informationen oder einen Besichtigungstermin!

Wohneinheiten

Zimmer Wohnfläche Preis Grundriss Anfragen
2
36 m²
€ 305.000
3
69 m²
€ 518.000
3
58 m²
€ 468.000
3
65 m²
€ 623.000
4
89 m²
€ 743.000
3
91 m²
€ 719.999
3
64 m²
€ 663.000
3
99 m²
€ 985.000
2
57 m²
€ 580.000
2
99 m²
€ 995.000
3
96 m²
€ 984.999
3
63 m²
€ 678.000
Fabian Doll

Ihr Ansprechpartner

Fabian Doll

Immobilienmakler

Preisdetails

Preis von:
305.000,00 €
Preis bis:
995.000,00 €
Provision:
3%

Fakten

Objektnummer:
141/84367
Objekttyp:
Sonstige
Flächen:
36,77 - 99,65 m²
Baujahr:
1910 saniert 2026
Verfügbarkeit:
Verfügbar

Energieeffizienz

HWB:
66,1 kWh/(m²*a)
HWB Klasse:
C
fGEE:
1,39
fGEE Klasse:
C

Nicht das Passende gefunden?

Jetzt vormerken lassen für zukünftige Projekte!

Max. 500 Zeichen
Diese Seite wird mit reCAPTCHA geschützt, es gelten die Google Datenschutzerklärung und Nutzungsbedingungen.