2-Zimmerwohnung in Graz Eggenberg

Wohnung zur Miete
8020 Graz Eggenberg

IMG_8373
IMG_8375
IMG_8383
Außenansicht

Beschreibung

In zentraler Lage im Bezirk Eggenberg, gegenüber der FH-JOANNEUM entsteht ein visionäres, urbanes Neubau-Projekt. Die parkähnliche Wohnanlage zeichnet sich durch viel Licht und Grün sowie eine perfekte Infrastruktur aus.

Moderne Neubau-Wohnungen mit Balkon bieten hohe Lebensqualität bei niedrigen Energiekosten.

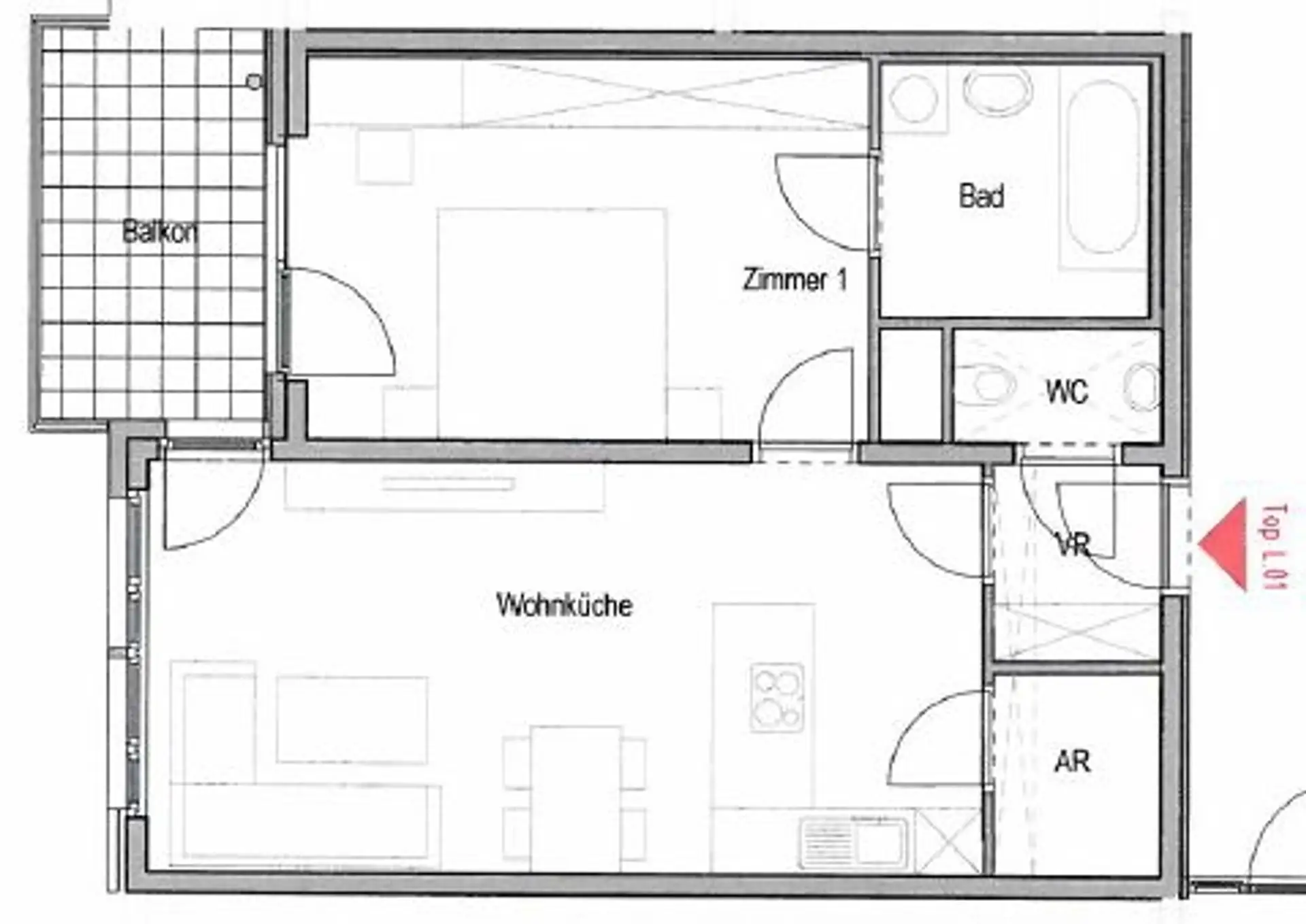
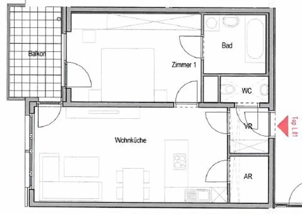
Die Top L 01 hat ca. 56,09 m˛ und befindet sich im 1. Obergeschoss.
Die Wohnung überzeugt durch ihren gut geplanten Grundriss. Sie verfügt über ein geräumiges Wohnzimmer, eine Küchenzeile, ein Schlafzimmer, ein Badezimmer mit Badewanne und Waschmaschinenanschluss, ein separates WC, einen Vorraum sowie einen Balkon der vom Wohnzimmer aus erreichbar ist.

Die Wohnung ist mit einer modernen Küchenzeile und Parkettböden/Fliesenböden ausgestattet.

Ein Kellerabteil ist der Wohnung zugeordnet und im Mietpreis inbegriffen.

Die Bruttomiete setzt sich zusammen aus: Hauptmietzins, Betriebskosten und Umsatzsteuer.

Zusätzliche Kosten:
Ein Tiefgaragenplatz (AP 185( kann optional um € 106,64,--( inkl. BK +Ust.) pro Monat angemietet werden.

Lage und Infrastruktur:
Umweltfreundliche Mobilität ist durch die unmittelbare Anbindung an öffentliche Verkehrsmittel, vergünstigte "Öffis"-Jahreskarte, Ladestationen für Elekroautos und -fahrräder, Car-Sharing uvm. gewährleistet.

Supermarkt, Apotheke, Gastronomiebetriebe, Kinderkrippe und Kindergarten befinden sich im Objekt selbst, die FH JOANNEUM kann trockenen Fußes erreicht werden.

Volksschulen, Neue Mittelschulen und Gymnasien befinden sich in der Nähe. Mehrere Sport- und Freizeitanlagen wie die Auster und das Schloss Eggenberg ermöglichen eine abwechslungsreiche Freizeitgestaltung. Das Landeskrankenhaus Graz Süd-West ist in 6 Minuten erreichbar.

30 weitere Neubauwohnungen in dieser Anlage noch verfügbar - wir beraten Sie gerne !
Siehe unter: www.makler.rustler.eu

Mietbeginn: ab sofort

Mietdauer: auf 5 Jahre befristet

Grundriss

Margit Pürrer

Ihr Ansprechpartner

Margit Pürrer

Immobilienmaklerin

Preisdetails

Gesamtmiete:
823,41 €
Nettomiete:
595,26 €
Betriebskosten netto:
115,83 €
Umsatzsteuer:
74,86 €
Kaution:
2.470,00 €
Provision:
provisionsfrei

Fakten

Objektnummer:
141/85171
Objekttyp:
Wohnung
Wohnfläche:
56,09 m²
Balkon:
1
Balkonfläche:
6,89 m²
Zimmer:
2
Badezimmer:
1
Toilette:
1
Neubau:
Ja
Verfügbarkeit:
Verfügbar

Ausstattungen

Fahrstuhl
Abstellraum
Fußbodenheizung

Energieeffizienz

HWB:
25,85 kWh/(m²*a)
HWB Klasse:
B
fGEE:
0,82
fGEE Klasse:
A