++ 1 MONAT MIETFREI ++ 1 Zimmer Wohnung in Wien 1210 Wien

Wohnung zur Miete
1210 Wien

IMG_3761
IMG_3759
IMG_3763
Badezimmer
Aussen
Lageplan

Beschreibung

Die Liegenschaft in der Deublergasse 18 bietet gepflegte 1 Zimmer Mietwohnungen der Mietkategorie A, die sich durch kompakte Grundrisse und eine funktionale Raumaufteilung auszeichnen. Jede Einheit verfügt über einen Wohn /Schlafraum, eine Kochnische mit Grundausstattung sowie ein Badezimmer mit Dusche.
Der Wohnstandard ist älter, aber ordentlich, und die Wohnungen sind sofort beziehbar.

Die Wohnungen richten sich an Mieterinnen und Mieter mit gesichertem Einkommen, die die üblichen Mietkriterien erfüllen. Für die Anmietung wird ein monatliches Nettoeinkommen von dem 2- fachen der Bruttomiete vorausgesetzt. Der Eigentümer ersucht im Zuge der Vergabe um einen Einkommensnachweis, um eine faire und transparente Vermietung sicherzustellen.

Damit eignen sich die Einheiten ideal für Singles, Berufseinsteiger, Pendler oder Studierende mit stabilem Einkommen, die eine leistbare und gut angebundene Stadtwohnung suchen.

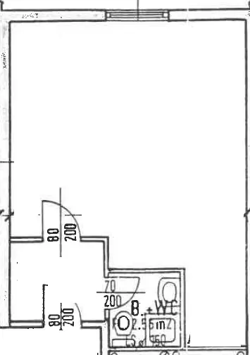
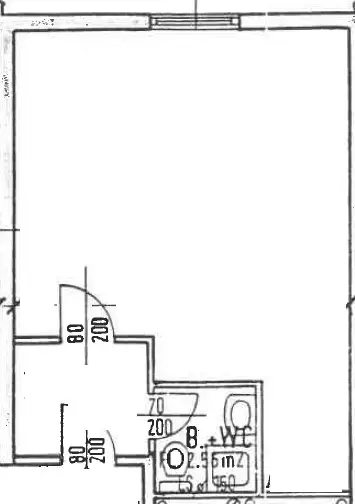
Diese ist wie folgt aufgeteilt:
+) Vorraum
+) Wohnraum mit Kochnische
+) Bad und WC 

Da im Haus in den kommenden Monaten weitere Wohnungen frei werden, werden unverbindliche Vormerkungen für zukünftige Einheiten gerne entgegengenommen. Interessenten können sich frühzeitig registrieren lassen und werden informiert, sobald neue Wohnungen verfügbar sind.

Fakten:
Lift vorhanden
Kellerabteil im EG 2-4m² groß
Waschküche
Garagenplätze für EUR 95,00
provisionsfrei für den Mieter

Kosten:
Einkommensnachweis: Monatliches Nettoeinkommen muss mindestens dem Doppelten der Gesamtmiete entsprechen
Mietvertragserrichtungsgebühren EUR 336,00 brutto

Lagebeschreibung:
Die angebotene Liegenschaft befindet sich in einem beliebten Teil des 21. Wiener Gemeindebezirks. Sie ist durch ihre Seitengassenlage sehr ruhig, jedoch zentral und sehr gut aufgeschlossen.

In der Koloniestraße unweit von Ihr zuhause befinden sich mehrere Öffentliche Verkehrsmittel wie, die Buslinie 26A, 36A und 36B sowie die Straßenbahn Stationen 26 + 27.

Fußläufig finden sich sämtliche Einkaufsmöglichkeiten des täglichen Bedarfs, was den Alltag der Bewohner äußerst komfortabel gestaltet.

Wir freuen uns Ihnen bei einem persönlichen Besichtigungstermin die weiteren Vorzüge dieses Projekts näher vorzustellen.

Aktion: Der erste Monat mietfrei bei Vertragsabschluss ein attraktiver Start in Ihr neues Zuhause!




Grundriss

Jasmina Burschitschek-Husic

Ihr Ansprechpartner

Jasmina Burschitschek-Husic

Immobilienmaklerin

Preisdetails

Gesamtmiete:
(exkl. Heizkosten)
759,23 €
Nettomiete:
470,00 €
Betriebskosten netto:
176,76 €
Umsatzsteuer:
72,64 €
Heizkosten brutto:
47,80 €
Kaution:
2.280,00 €
Provision:
provisionsfrei

Fakten

Objektnummer:
141/84806
Objekttyp:
Wohnung
Wohnfläche:
36 m²
Zimmer:
1
Badezimmer:
1
Toilette:
1
Baujahr:
1993
Verfügbarkeit:
Verfügbar

Ausstattungen

Fahrstuhl

Energieeffizienz

HWB:
44,02 kWh/(m²*a)
HWB Klasse:
B